Luxury Real Estate Group Boston > Randolph > 30 Hemlock Ter

LRG Boston

(617) 233-5800

355 Boylston St

Boston, Ma 02116

30 Hemlock Ter

Randolph, MA

Property Description

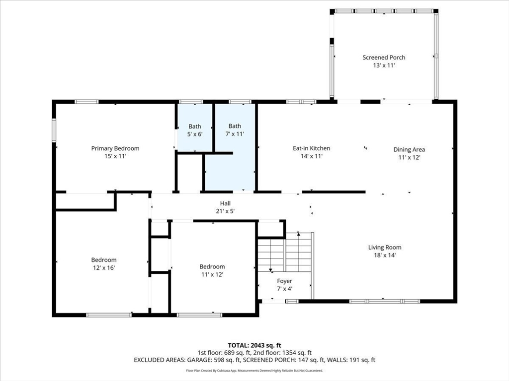
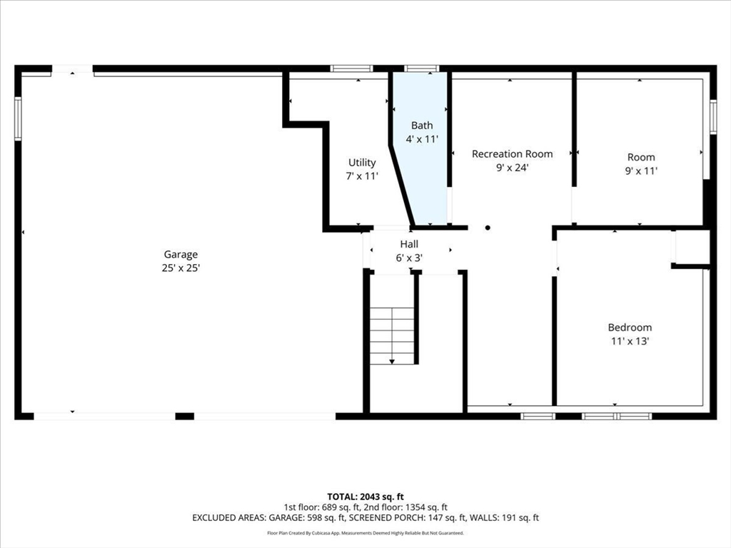
Expanded 5-bedroom, 2.5 bath raised ranch on a quiet side street, thoughtfully upgraded and perfect for extended or multi-generational living. The main level offers a bright living room, open dining area, and updated kitchen with brand-new stainless steel appliances and high-quality hardwood floors. An enclosed porch adds a flexible year-round space for relaxing, a playroom, or a home office. Fully finished lower level includes 2 additional bedrooms, a new full bath, a spacious family room, a laundry area, and direct access to the 4-car garage with new doors. The majority of the work is done and already in place for a second kitchen, making the nearly finished in-law/ADU setup ideal for guests, extended family, or future rental potential. The buyer would need to complete the final steps. Set on a well-kept lot close to schools, shopping, and major routes, 30 Hemlock delivers rare space, versatility, and value in sought-after Randolph. First showing at open house Sat Dec 6, 10a-12noon.

offered at

$729,000

  • Status: New
  • Listing ID: 73458801
  • Bedrooms: 5
  • Full Baths: 2
  • Half Baths: 1
  • Living Area: 2,043 sqft Convert
  • Lot Size: 12,000 sqft Convert
  • Acres: 0.28

Additional Details

Type: Single Family, Single Family Residence

Zip Code: 02368

Parking

Garage: 2

Garage Capacity: 6

Parking: Under, Paved Drive

Parking Spaces: 6

Rooms and Dimensions

Total Rooms: 6

Contact: LRG Boston at (617) 233-5800

LRGBOSTON.COM

355 Boylston St. Boston, MA 02116

Map

Photos