Luxury Real Estate Group Boston > Worcester > 35 Genessee St #I

LRG Boston

(617) 233-5800

355 Boylston St

Boston, Ma 02116

35 Genessee St #I

Worcester, MA

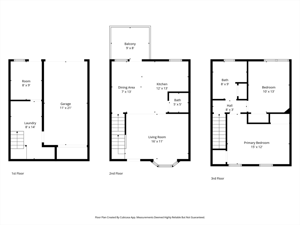
Property Description

Wonderful 3-level, end-unit townhome with low fee, very pet-friendly HOA- now featuring brand new laminate flooring! Nestled in the quiet Webster Square area this end unit offers a rare combination of privacy, convenience, and easy living. The open-concept first floor includes a bright kitchen, a spacious dining area that can comfortably fit a full-size table, and a generous living room with direct access to your private deck—perfect for relaxing or entertaining. Upstairs, you’ll find two well-sized bedrooms and a full bath, along with great storage throughout.The lower level offers flexible bonus space with a heated room ideal for a mudroom, home gym, office, or creative studio. There’s also a dedicated laundry area and direct access to the attached, heated garage. Enjoy multiple entry points—from the front door, the garage, or the lower-level walkout. With quick access to area colleges, parks, shopping, and major highways! Open House 12/6 11-12:30pm.

offered at

$274,900

  • Listing ID: 73459171
  • Bedrooms: 2
  • Full Baths: 1
  • Half Baths: 1
  • Living Area: 980 sqft Convert

Additional Details

Type: Condo, Condominium

Style: Townhouse

Area: Webster Square

Zip Code: 01603

HOA Fee: $135

Living Levels: 2

Unit Level: 1

Parking

Garage: 1

Garage Capacity: 3

Parking: Attached, Garage Door Opener, Heated Garage, Off Street, Guest, Exclusive Parking

Parking Spaces: 3

Rooms and Dimensions

Total Units: 17

Total Floors: 2

Total Rooms: 4

Contact: LRG Boston at (617) 233-5800

LRGBOSTON.COM

355 Boylston St. Boston, MA 02116

Map

Photos