Luxury Real Estate Group Boston > Lowell > 39 Phoebe Ave

LRG Boston

(617) 233-5800

355 Boylston St

Boston, Ma 02116

39 Phoebe Ave

Lowell, MA

Property Description

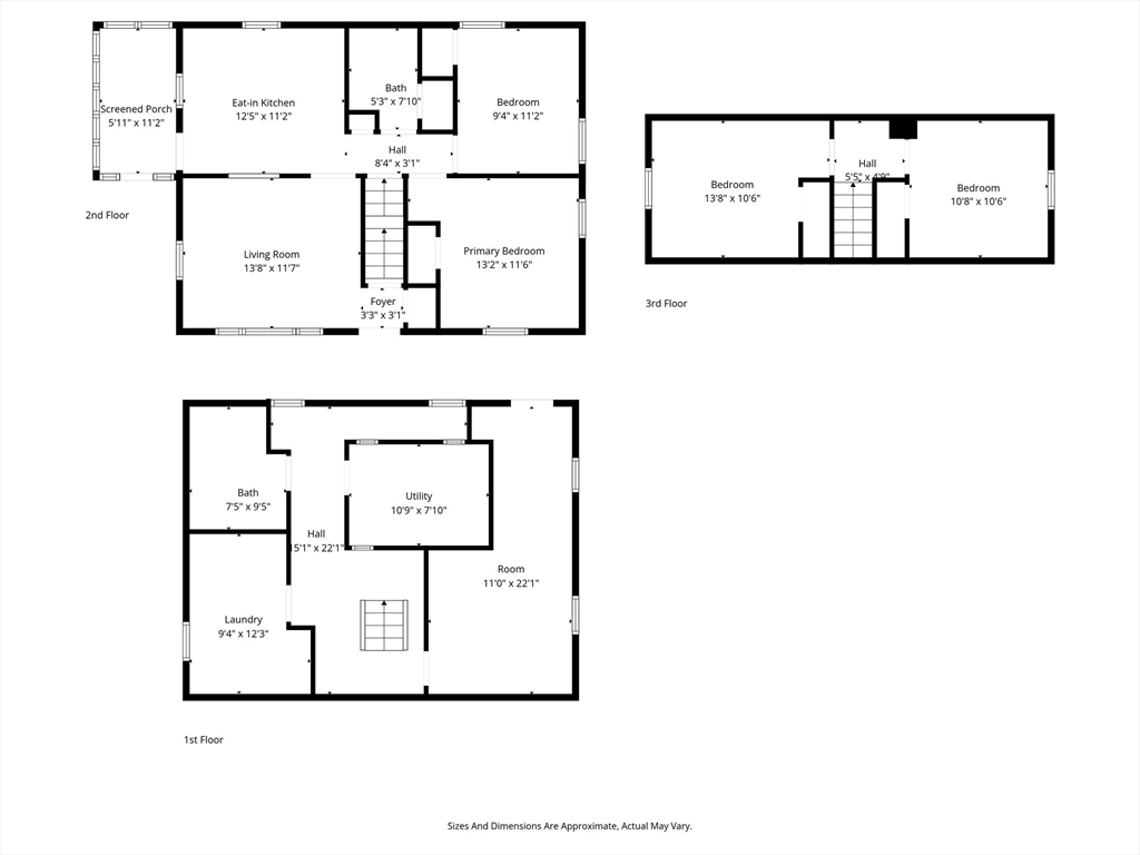
Welcome to this well-maintained Cape-style home in Lowell’s desirable Pawtucketville neighborhood. Offering 4 bedrooms with potential 5th bedroom or office and 2 full bathrooms, this 1,532 sq ft home provides a flexible layout ideal for extended living, guests, home office, or additional living space needs. The first floor features a comfortable living room, an eat-in kitchen, and two bedrooms with a full bath. The second floor offers additional bedrooms and another full bathroom, providing privacy and a variety of room-use options. The large fenced-in yard offers space for outdoor activities, pets, gardening, and future customization. Additional features include a paved driveway with off-street parking for two cars and city water/sewer. Conveniently located near UMass Lowell, schools, parks, shopping, and major routes. A solid opportunity for owner-occupants or investors looking for strong rental potential in a sought-after area.

offered at

$599,000

  • Status: Back on Market
  • Listing ID: 73460534
  • Bedrooms: 4
  • Full Baths: 2
  • Living Area: 1,834 sqft Convert
  • Lot Size: 6,970 sqft Convert
  • Acres: 0.16

Additional Details

Type: Single Family, Single Family Residence

Zip Code: 01854

Parking

Garage Capacity: 2

Parking: Paved Drive

Parking Spaces: 2

Rooms and Dimensions

Total Rooms: 6

Contact: LRG Boston at (617) 233-5800

LRGBOSTON.COM

355 Boylston St. Boston, MA 02116

Map

Photos