Luxury Real Estate Group Boston > Waltham > 149 Adams St #149

LRG Boston

(617) 233-5800

355 Boylston St

Boston, Ma 02116

149 Adams St #149

Waltham, MA

Property Description

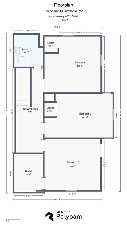
Welcome to this beautifully updated, move-in-ready 3-bedroom, 1-bathroom apartment located in a desirable area of Waltham. The unit features modern updates throughout, including new dark plank flooring in the bright, open-concept living area with large bay windows, and a fully updated kitchen showcasing white shaker cabinets, stainless steel appliances, and a full-sized refrigerator. The remodeled bathroom is a luxurious retreat with floor-to-ceiling stone tiling and a stand-up shower, while the three comfortable bedrooms feature warm carpeting and ample natural light. This modern rental offers high-quality living with easy access to all Waltham amenities.

offered at

$3,300

  • Status: New
  • Listing ID: 73461675
  • Bedrooms: 3
  • Full Baths: 1
  • Living Area: 1,250 sqft Convert
  • Lot Size: 9,999,999 sqft Convert

Additional Details

Type: Rental, Apartment

Zip Code: 02453

Unit Level: 2

Rooms and Dimensions

Total Rooms: 7

Contact: LRG Boston at (617) 233-5800

LRGBOSTON.COM

355 Boylston St. Boston, MA 02116

Map

Photos