Luxury Real Estate Group Boston > Ashburnham > 207 Sherbert Rd

LRG Boston

(617) 233-5800

355 Boylston St

Boston, Ma 02116

207 Sherbert Rd

Ashburnham, MA

Property Description

Split-level (raised ranch) home on 1.2 acres offering 3 bedrooms, 2 bathrooms, and a bright, versatile layout. The upper-level features wood flooring and a living/dining area with a fireplace and a large picture window showcasing picturesque views of lower Naukeag Lake. The kitchen opens to the living area for easy entertainment, and the dining room slider leads to the back deck for seamless indoor/outdoor living. The main bedroom includes its own private bathroom. The finished lower level offers a spacious family room with a wet bar, game area, and flexible space ideal for guests, multigenerational living, or a private retreat for a college student. Designated laundry room, garage under, and ample off-street parking complete this inviting home. See Firm Remarks.

offered at

$429,900

  • Listing ID: 73462263
  • Bedrooms: 3
  • Full Baths: 2
  • Living Area: 2,060 sqft Convert
  • Lot Size: 52,272 sqft Convert
  • Acres: 1.2

Additional Details

Type: Single Family, Single Family Residence

Zip Code: 01430

Parking

Garage: 1

Garage Capacity: 5

Parking: Under, Garage Door Opener, Garage Faces Side, Paved Drive, Off Street, Paved

Parking Spaces: 5

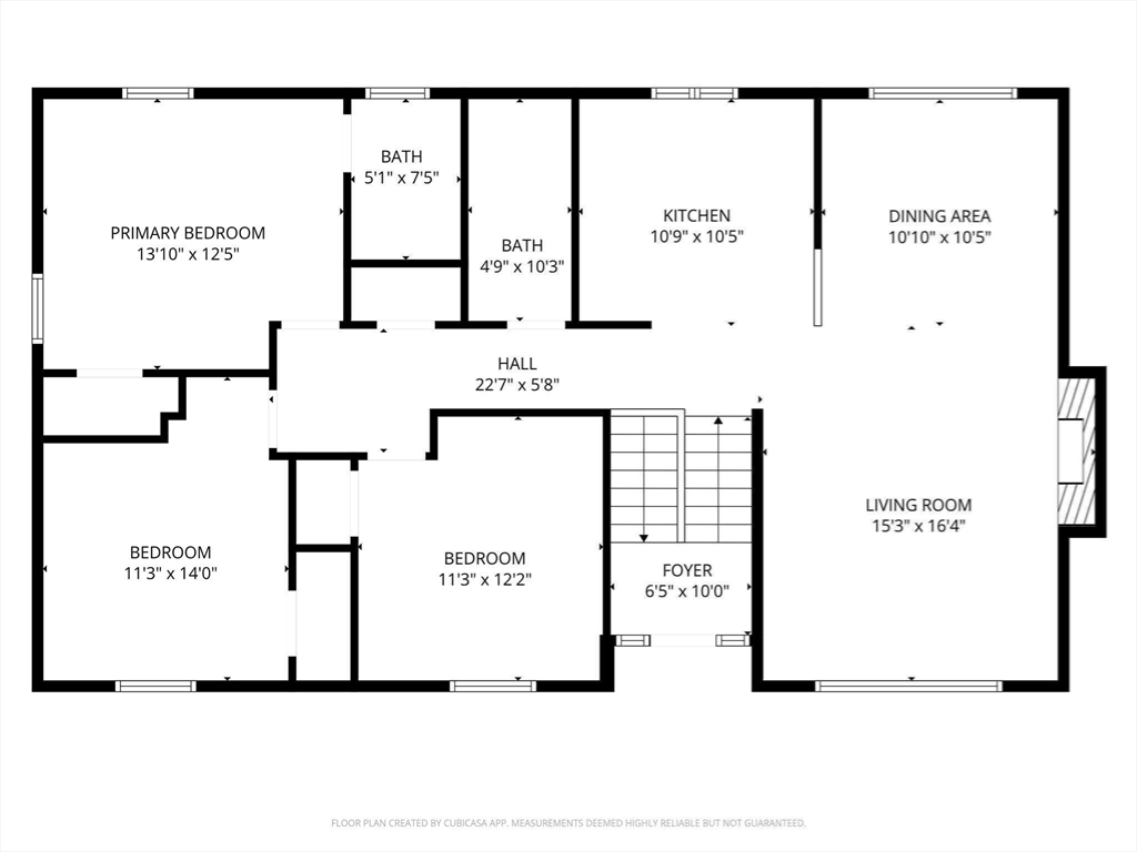
Rooms and Dimensions

Total Rooms: 7

Contact: LRG Boston at (617) 233-5800

LRGBOSTON.COM

355 Boylston St. Boston, MA 02116

Map

Photos