Luxury Real Estate Group Boston > Nantucket > 83 Baxter Road

LRG Boston

(617) 233-5800

355 Boylston St

Boston, Ma 02116

83 Baxter Road

Nantucket, MA

Property Description

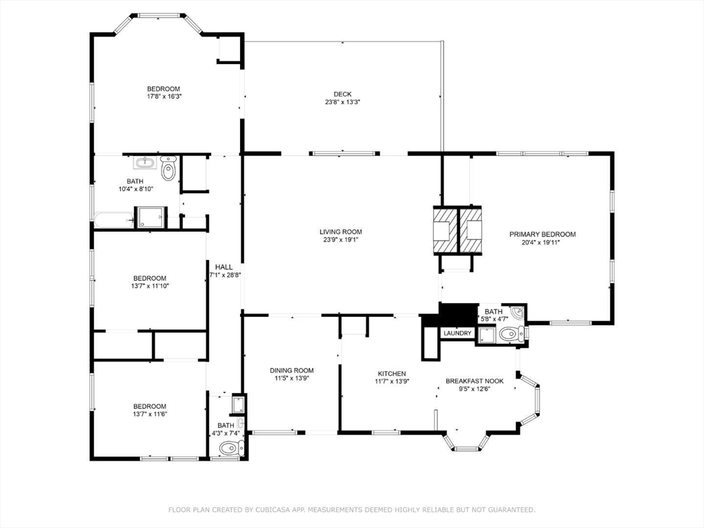
Welcome to 83 Baxter Road, where the Atlantic Ocean stretches endlessly before you and the rhythm of the waves becomes part of daily life. This four-bedroom, three-bath residence blends classic 'Sconset charm with effortless coastal comfort and panoramic ocean views. The spacious single-level floor plan features generously sized rooms, soaring cathedral ceilings, and abundant natural light. A sun-filled living room with a wood-burning fireplace opens to the ocean-facing deck and backyard. The primary suite offers cathedral ceilings, a second fireplace, multiple closets, and an en-suite bath. A separate guest wing includes three bedrooms and two additional baths, including a secondary suite with ocean views and deck access. Outdoor spaces include expansive decking, lawn areas, and ample off-street parking. Conveniently located near Sankaty Head Lighthouse, the 'Sconset Bluff Walk, 'Sconset Beach, and the village center. Luxury isn't always loud. Sometimes, it's simply peaceful.

offered at

$1,895,000

  • Status: New
  • Listing ID: 73463048
  • Bedrooms: 4
  • Full Baths: 3
  • Living Area: 2,301 sqft Convert
  • Lot Size: 15,246 sqft Convert
  • Acres: 0.35

Additional Details

Type: Single Family, Single Family Residence

Area: Siasconset

Zip Code: 02564

Parking

Garage Capacity: 4

Parking: Off Street, Stone/Gravel

Parking Spaces: 4

Rooms and Dimensions

Total Rooms: 7

Contact: LRG Boston at (617) 233-5800

LRGBOSTON.COM

355 Boylston St. Boston, MA 02116

Map

Photos