Luxury Real Estate Group Boston > Pawtucket > 458-460 Smithfield Ave

LRG Boston

(617) 233-5800

355 Boylston St

Boston, Ma 02116

458-460 Smithfield Ave

Pawtucket, RI

Property Description

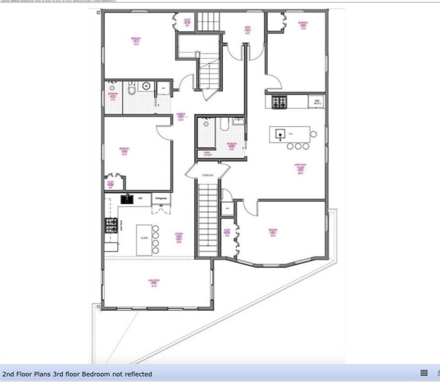
4 unit mixed-use property located in the Fairlawn area. Minutes from the new train station. This prime location offers excellent visibility and convenience, making it ideal for both commercial use and residential living. The first level features a fully accessible medical office space, along with a spacious one bedroom apartment. The second level includes a two bedroom unit and a townhouse style three bedroom apartment that extends up to the third floor. A full-size basement provides generous storage and utility space. All residential units have been beautifully upgraded with modern features, including quartz countertops, large kitchen islands, stainless steel appliances, dishwashers, and in unit laundry hookups. This property has been completely renovated from top to bottom, offering a new exterior, interior design, structure, and a new roof, showcasing high quality craftsmanship and thoughtful design throughout. Located near the highly anticipated Tidewater Landing. Virtually staged

offered at

$1,100,000

  • Status: New
  • Listing ID: 73463088
  • Bedrooms: 6
  • Full Baths: 4
  • Half Baths: 1
  • Living Area: 3,366 sqft Convert
  • Lot Size: 2,791 sqft Convert
  • Acres: 0.06

Additional Details

Type: Multi-Family, 4 Family

Zip Code: 02860

Levels: 5

Parking

Garage Capacity: 3

Parking: Paved Drive, Off Street

Parking Spaces: 3

Rooms and Dimensions

Total Units: 4

Total Floors: 5

Total Rooms: 16

Contact: LRG Boston at (617) 233-5800

LRGBOSTON.COM

355 Boylston St. Boston, MA 02116

Map

Photos