Luxury Real Estate Group Boston > Boston > 26 Darling #2

LRG Boston

(617) 233-5800

355 Boylston St

Boston, Ma 02116

26 Darling #2

Boston, MA

Property Description

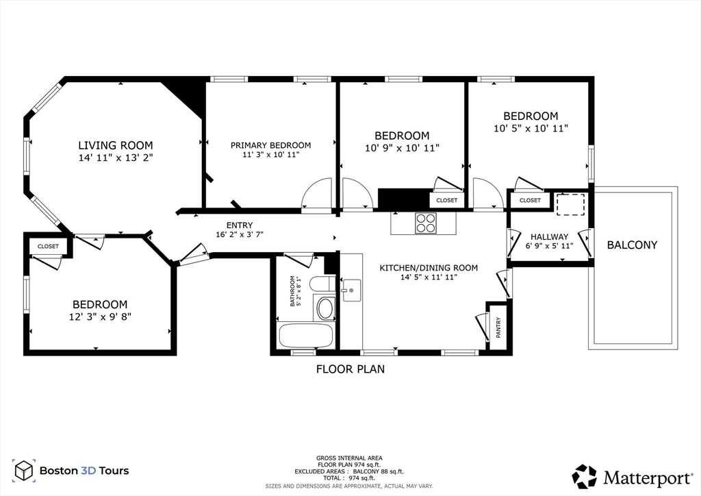
This sun-filled, spacious 4-bedroom, 1-bath apartment in the center of Mission Hill has all the essentials: a large living area, a cozy eat-in kitchen, on-site laundry, a private deck, and access to a shared backyard for outdoor time. Street parking with a resident permit is available. Near major universities, it offers both convenience and an active atmosphere. Professionally managed. Popular with students. No broker fee.

offered at

$6,500

  • Status: New
  • Listing ID: 73463850
  • Bedrooms: 4
  • Full Baths: 1
  • Living Area: 1,250 sqft Convert
  • Lot Size: 1,250 sqft Convert

Additional Details

Type: Rental, Apartment

Area: Mission Hill

Zip Code: 02120

Unit Level: 2

Rooms and Dimensions

Total Rooms: 7

Contact: LRG Boston at (617) 233-5800

LRGBOSTON.COM

355 Boylston St. Boston, MA 02116

Map

Photos