Luxury Real Estate Group Boston > Douglas > 408 Ne Main Street

LRG Boston

(617) 233-5800

355 Boylston St

Boston, Ma 02116

408 Ne Main Street

Douglas, MA

Property Description

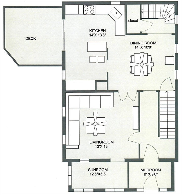
This lovely Village Colonial could be your next home address. Set on a fenced lot in the Village Business Zone it's the perfect location for a home business. Features include hardwood flooring, replacement windows, newer roof, siding, kitchen, deck & boiler (see Documents for dates). First floor offers formal living room, dining room with pellet stove, & kitchen with breakfast bar & slider to the composite deck. A turning staircase leads to the second floor where 3 bedrooms & a remodeled bath reside. All bedrooms have ceiling fans and the Main bedroom offers a walk-in closet. If you wish to expand your living area there is also a staircase to attic storage space as well as an enclosed sunroom porch, and a partially finished walk-out basement where former owners once ran their flooring business. There was once a half bath in the basement with potential to restore. The home is serviced with town water and sewer and has 4 parking spaces available in the U-shaped paved driveway.

offered at

$399,900

  • Listing ID: 73464332
  • Bedrooms: 3
  • Full Baths: 1
  • Living Area: 1,656 sqft Convert
  • Lot Size: 5,907 sqft Convert
  • Acres: 0.14

Additional Details

Type: Single Family, Single Family Residence

Zip Code: 01516

Parking

Garage Capacity: 4

Parking: Paved Drive, Off Street, Paved

Parking Spaces: 4

Rooms and Dimensions

Total Rooms: 7

Contact: LRG Boston at (617) 233-5800

LRGBOSTON.COM

355 Boylston St. Boston, MA 02116

Map

Photos