Luxury Real Estate Group Boston > Stoneham > 62 High Street Lot 8

LRG Boston

(617) 233-5800

355 Boylston St

Boston, Ma 02116

62 High Street Lot 8

Stoneham, MA

Property Description

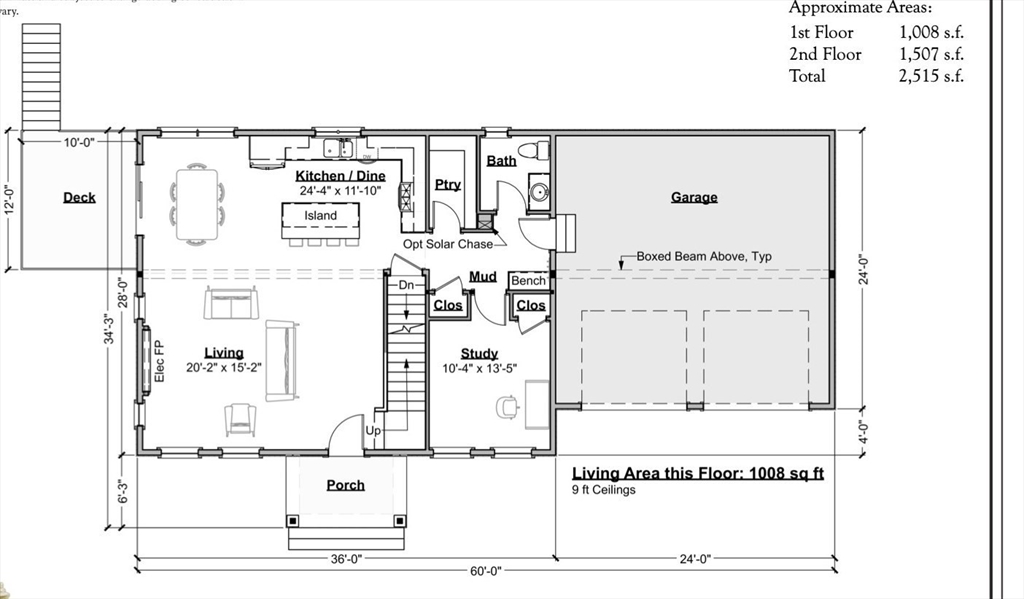
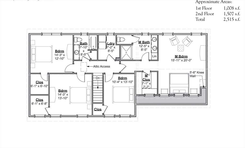
Only 2 homes left at Stoneham Heights! Stoneham’s newest and most prestigious neighborhood. Discover Stoneham Heights, an exclusive collection of 13 newly constructed, architect-designed, single-family residences. Crafted by a local builder with high-quality materials, these homes offer modern design and open floor plans for today’s lifestyle. Exceptional features include gourmet kitchens, luxurious bathrooms, and energy-efficient designs. Enjoy private yards for outdoor living, with a variety of layouts and styles, all featuring 4 bedrooms, 2-car garages and 2.5 baths. Choose from floor plans ranging from 2,500-3,057 square feet, plus optional finished basements. Relish the serenity of lot 8 with spectacular views of Bear Hill Golf Course. Located just 10 miles north of Boston, Stoneham Heights offers suburban tranquility with city convenience, close to the Fells Reservation and downtown Stoneham. Don’t miss this rare chance to own a new construction home at Stoneham Heights.

offered at

$1,549,900

  • Listing ID: 73464776
  • Bedrooms: 4
  • Full Baths: 2
  • Half Baths: 1
  • Living Area: 2,515 sqft Convert
  • Lot Size: 13,517 sqft Convert
  • Acres: 0.31

Additional Details

Type: Single Family, Single Family Residence

Zip Code: 02180

Parking

Garage: 2

Garage Capacity: 4

Parking: Attached, Paved Drive, Off Street, Paved

Parking Spaces: 4

Rooms and Dimensions

Total Rooms: 10

Contact: LRG Boston at (617) 233-5800

LRGBOSTON.COM

355 Boylston St. Boston, MA 02116

Map

Photos