Luxury Real Estate Group Boston > Boston > 7 Wordsworth #1-1A

LRG Boston

(617) 233-5800

355 Boylston St

Boston, Ma 02116

7 Wordsworth #1-1A

Boston, MA

Property Description

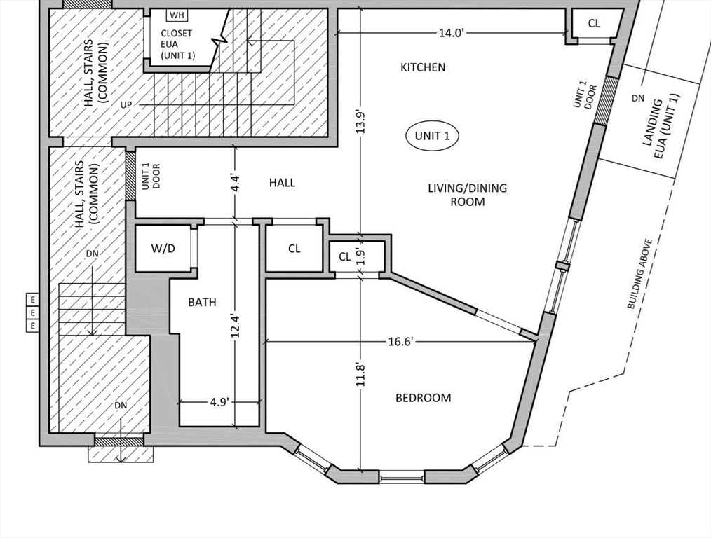
2023-Built 1BR with Parking & Low HOA – Easy Access Living in East Boston! Welcome to this 2023-built 1-bedroom condo offering 674 sq ft of modern, low-maintenance living in East Boston. Designed with an open layout and contemporary finishes, this move-in-ready home features central air, in-unit laundry, dedicated storage, and efficient newer construction throughout.Enjoy the convenience of easy, no-stair access — ideal for everyday living, pet owners, and effortless move-ins. The spacious bedroom offers great functionality, while the sleek kitchen includes modern cabinetry and appliances.A dedicated parking space and exceptionally low $274 condo fee provide outstanding value at this price point. Conveniently located near neighborhood restaurants, green space, bus routes, Logan Airport, and downtown Boston access.A smart opportunity for first-time buyers or investors seeking newer construction, parking, and low carrying costs in East Boston.

offered at

$489,999

  • Listing ID: 73465636
  • Bedrooms: 1
  • Full Baths: 1
  • Living Area: 671 sqft Convert

Additional Details

Type: Condo, Condominium

Style: Mid-Rise

Area: East Boston

Zip Code: 02128

HOA Fee: $274

Living Levels: 1

Unit Level: 1

Parking

Garage: 1

Garage Capacity: 2

Parking: Attached, Under, Deeded, Off Street

Parking Spaces: 2

Rooms and Dimensions

Total Units: 6

Total Floors: 1

Total Rooms: 7

Contact: LRG Boston at (617) 233-5800

LRGBOSTON.COM

355 Boylston St. Boston, MA 02116

Map

Photos