Luxury Real Estate Group Boston > Dennis > 18 Six Penny Ln

LRG Boston

(617) 233-5800

355 Boylston St

Boston, Ma 02116

18 Six Penny Ln

Dennis, MA

Property Description

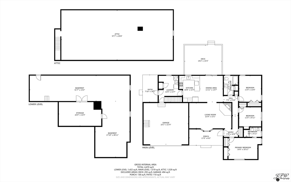
Located on a quiet street in desirable Dennis, 18 Six Penny Ln has the perfect blend of solid construction, smart updates, and future potential. In the kitchen you'll find new quartz counter tops, a double oven, and an open dining area. The inviting living room has a gas fireplace and beautiful hardwood floors that carry through to the 3 bedrooms. This home has 1-level living with a full basement and an expansive attic space above the 2-car garage. The home has a newer gas furnace, new Rinnai water heater, a generator, newer composite deck, and newer shed. While the interior reflects a more classic style cosmetically, it presents a fantastic opportunity for someone to update at their own pace and truly make the home their own without the burden of major projects. Set in a convenient Dennis location just miles to Follins Pond, Mayflower Beach, and Dennis Village, this property is well-suited for year-round living or a second home.

offered at

$800,000

  • Listing ID: 73465856
  • Bedrooms: 3
  • Full Baths: 2
  • Living Area: 1,592 sqft Convert
  • Lot Size: 20,473 sqft Convert
  • Acres: 0.47

Additional Details

Type: Single Family, Single Family Residence

Zip Code: 02638

Parking

Garage: 2

Garage Capacity: 5

Parking: Attached, Garage Door Opener, Storage, Off Street, Paved

Parking Spaces: 5

Rooms and Dimensions

Total Rooms: 6

Contact: LRG Boston at (617) 233-5800

LRGBOSTON.COM

355 Boylston St. Boston, MA 02116

Map

Photos