Luxury Real Estate Group Boston > Hingham > 9 Barnes Rd

LRG Boston

(617) 233-5800

355 Boylston St

Boston, Ma 02116

9 Barnes Rd

Hingham, MA

Property Description

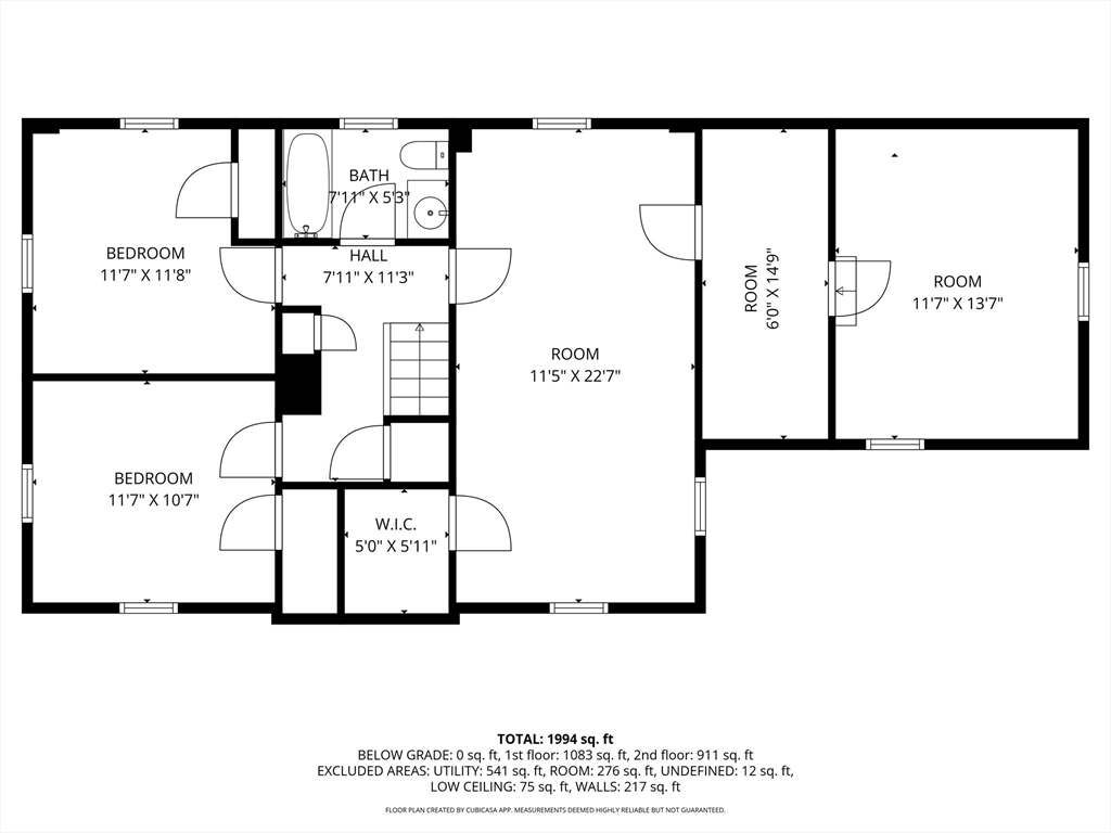
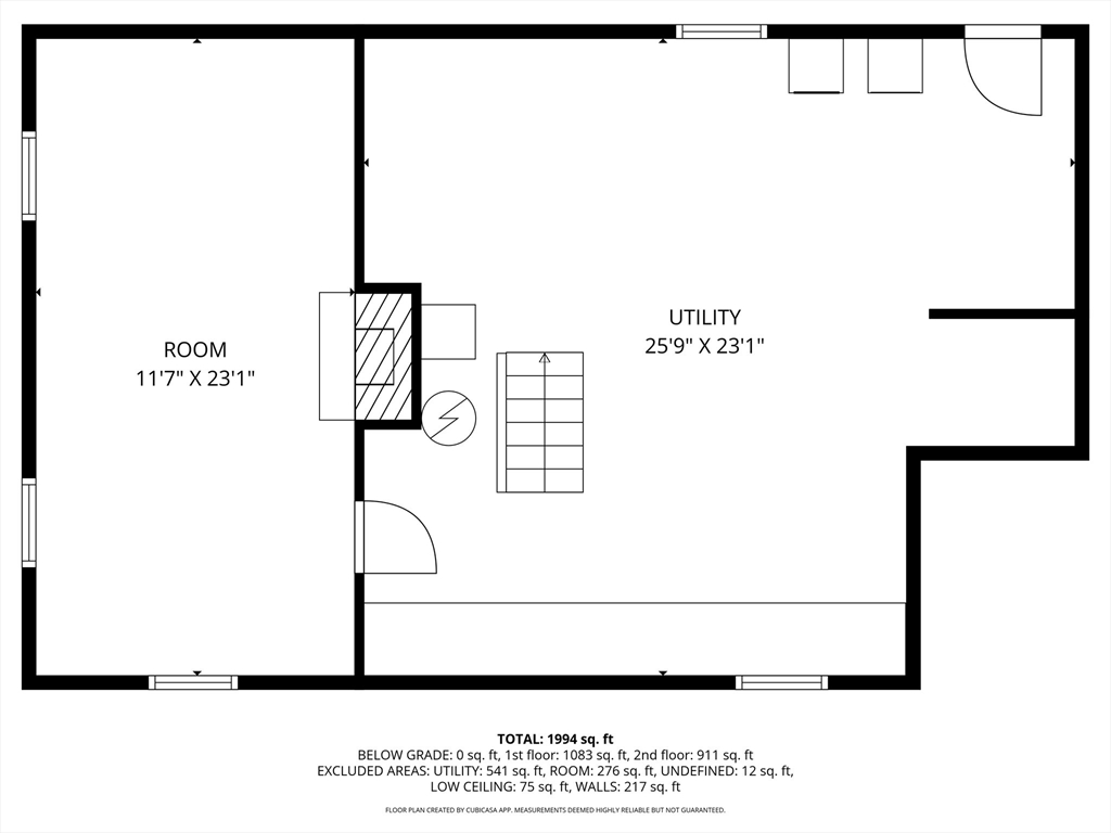
Attention investors, contractors, and DIYers! Opportunity is knocking in the New Year with this large 4-bedroom, 2 -bath home located on a quiet side street near Hingham Harbor and Bathing Beach. Offering 2,206 square feet of living space, this property is a blank canvas ready for new owners to bring their vision and make it shine. Hardwood floors are present in portions of the home. The property is situated on .45 acres of property. Failed Title V—buyer to assume responsibility.

offered at

$799,900

  • Status: Back on Market
  • Listing ID: 73467661
  • Bedrooms: 4
  • Full Baths: 2
  • Living Area: 2,206 sqft Convert
  • Lot Size: 19,570 sqft Convert
  • Acres: 0.45

Additional Details

Type: Single Family, Single Family Residence

Zip Code: 02043

Parking

Garage Capacity: 3

Parking Spaces: 3

Rooms and Dimensions

Total Rooms: 9

Contact: LRG Boston at (617) 233-5800

LRGBOSTON.COM

355 Boylston St. Boston, MA 02116

Map

Photos