Luxury Real Estate Group Boston > Taunton > 300-C Prospect Hill St

LRG Boston

(617) 233-5800

355 Boylston St

Boston, Ma 02116

300-C Prospect Hill St

Taunton, MA

Property Description

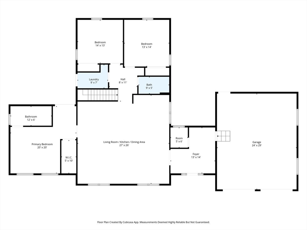
Attention Contractors & Investors! Unfinished 3-bedroom, 3.5-bath home located right on the Raynham, MA line in Taunton. Exterior construction is nearly complete; interior requires finish work, offering a prime opportunity to add value and customize. The basement features 8-foot ceilings, rough plumbing for a full bath, and is ready to be finished for substantial additional living space.The home offers 200-amp electrical service, is connected to Raynham sewer, and includes a high-end Aquasana whole-house well filtration system. Designed with comfort and efficiency in mind, the property has central air conditioning and includes an on-demand tankless hot water system.Additional highlights include a 2-car oversized garage, an expansive 804 sq ft composite deck, and a stunning primary suite with cathedral ceiling, en-suite bath, and private slider to the deck. Set on a secluded 1.03-acre lot, this property delivers exceptional privacy with strong upside potential for the right buyer.

offered at

$599,900

  • Listing ID: 73467690
  • Bedrooms: 3
  • Full Baths: 3
  • Half Baths: 1
  • Living Area: 1,989 sqft Convert
  • Lot Size: 44,867 sqft Convert
  • Acres: 1.03

Additional Details

Type: Single Family, Single Family Residence

Zip Code: 02780

Parking

Garage: 2

Garage Capacity: 12

Parking: Attached, Off Street

Parking Spaces: 12

Rooms and Dimensions

Total Rooms: 5

Contact: LRG Boston at (617) 233-5800

LRGBOSTON.COM

355 Boylston St. Boston, MA 02116

Map

Photos