Luxury Real Estate Group Boston > Fall River > 150 Purchase St

LRG Boston

(617) 233-5800

355 Boylston St

Boston, Ma 02116

150 Purchase St

Fall River, MA

Property Description

STOP SCROLLING — THIS IS THE ONE INVESTORS WANT. Approved 5-UNIT deal in Fall River with serious upside. This is an INCOMPLETE PROJECT and priced accordingly — perfect for contractors and investors looking to force equity. Features high ceilings, strong structure, and a great layout ready for finishing. Buyer is responsible for ALL remaining construction. Located not far from the new MBTA South Coast Rail / Fall River station, driving future demand, rents, and appreciation. Roll up your sleeves, finish the job, and unlock a high-cash-flow asset in a growing market. Opportunities like this don’t last — bring your vision and make your money.

offered at

$699,900

  • Listing ID: 73467719
  • Bedrooms: 8
  • Full Baths: 6
  • Half Baths: 1
  • Living Area: 3,810 sqft Convert
  • Lot Size: 6,308 sqft Convert
  • Acres: 0.14

Additional Details

Type: Multi-Family, 5+ Family - 5+ Units Up/Down

Zip Code: 02720

Levels: 6

Parking

Garage Capacity: 8

Parking: Paved Drive, Off Street

Parking Spaces: 8

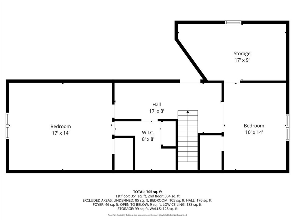
Rooms and Dimensions

Total Units: 5

Total Floors: 6

Total Rooms: 17

Contact: LRG Boston at (617) 233-5800

LRGBOSTON.COM

355 Boylston St. Boston, MA 02116

Map

Photos