Luxury Real Estate Group Boston > Somerville > 69 Boston Ave #69

LRG Boston

(617) 233-5800

355 Boylston St

Boston, Ma 02116

69 Boston Ave #69

Somerville, MA

Property Description

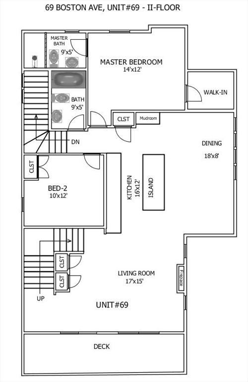
Introducing LUXURY Condo of the highest quality and craftsmanship in sought after DAVIS SQUARE neighborhood. This unique & stunning contemporary Condo, developed & designed by one of the city's most prestigious teams, offers approx.2,400sf of open living space, w/ exquisite hardwood floors, 2-level of living space with 4 bedrooms, 3 bath. Custom imported cabinets, Professional-grade Z-line appliances w/ gas cooking, Long Quartz island w/ bar area. Two master suite features walk-in closets, en-suite bath, double vanity, shower w/ frameless glass enclosure, Spa showers w/ adjustable body jet for soothing massage. Tankless water heater, high efficiency heat/cool HVAC, HERS rated house, video door bell. 2 off street parking w/ car charger ready, Private fenced yard, stone patio. Conveniently located for Boston Commute.

offered at

$1,424,900

  • Status: New
  • Listing ID: 73467976
  • Bedrooms: 4
  • Full Baths: 4
  • Living Area: 2,480 sqft Convert
  • Lot Size: 4,270 sqft Convert
  • Acres: 0.1

Additional Details

Type: Condo, Condominium

Style: 2/3 Family

Area: Davis Square

Zip Code: 02144

HOA Fee: $225

Living Levels: 2

Unit Level: 2

Parking

Garage Capacity: 2

Parking: Off Street, Deeded, Paved

Parking Spaces: 2

Rooms and Dimensions

Total Units: 2

Total Floors: 2

Total Rooms: 8

Contact: LRG Boston at (617) 233-5800

LRGBOSTON.COM

355 Boylston St. Boston, MA 02116

Map

Photos