Luxury Real Estate Group Boston > Watertown > 7 Nichols Ave

LRG Boston

(617) 233-5800

355 Boylston St

Boston, Ma 02116

7 Nichols Ave

Watertown, MA

Property Description

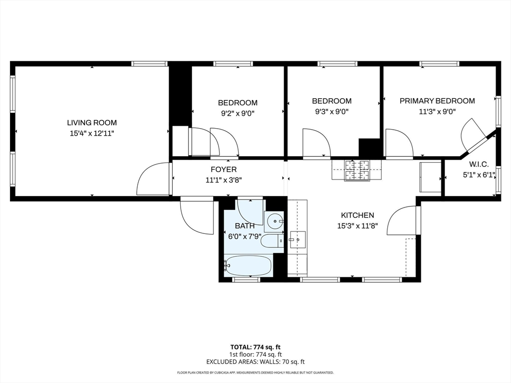
Rare, well maintained triple decker located in desirable east Watertown, a great opportunity for investors or owner-occupants. The property offers three spacious units, each with generous room sizes, hardwood floors, ample natural lighting, and functional layouts. Separate utilities, and solid mechanicals to support long term value. A versatile asset in a high demand rental market. Great income potential with upside for future appreciation. More information coming soon!

offered at

$1,499,900

  • Status: New
  • Listing ID: 73468135
  • Bedrooms: 5
  • Full Baths: 3
  • Living Area: 3,282 sqft Convert
  • Lot Size: 3,613 sqft Convert
  • Acres: 0.08

Additional Details

Type: Multi-Family, 3 Family

Zip Code: 02472

Levels: 3

Parking

Parking: Paved Drive

Rooms and Dimensions

Total Units: 3

Total Floors: 3

Total Rooms: 17

Contact: LRG Boston at (617) 233-5800

LRGBOSTON.COM

355 Boylston St. Boston, MA 02116

Map

Photos