Luxury Real Estate Group Boston > Boston > 1159-1171 Washington Street

LRG Boston

(617) 233-5800

355 Boylston St

Boston, Ma 02116

1159-1171 Washington Street

Boston, MA

Property Description

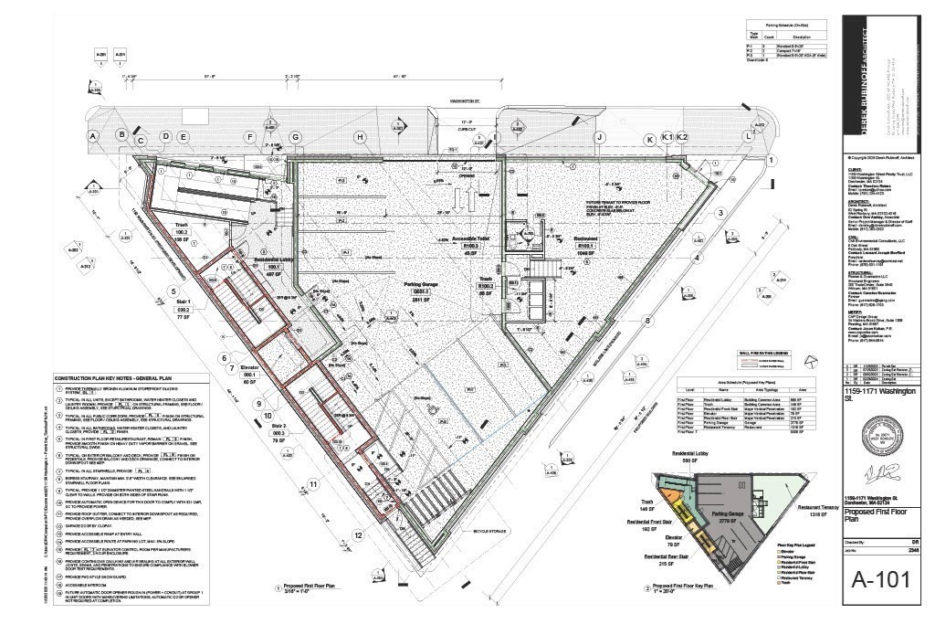
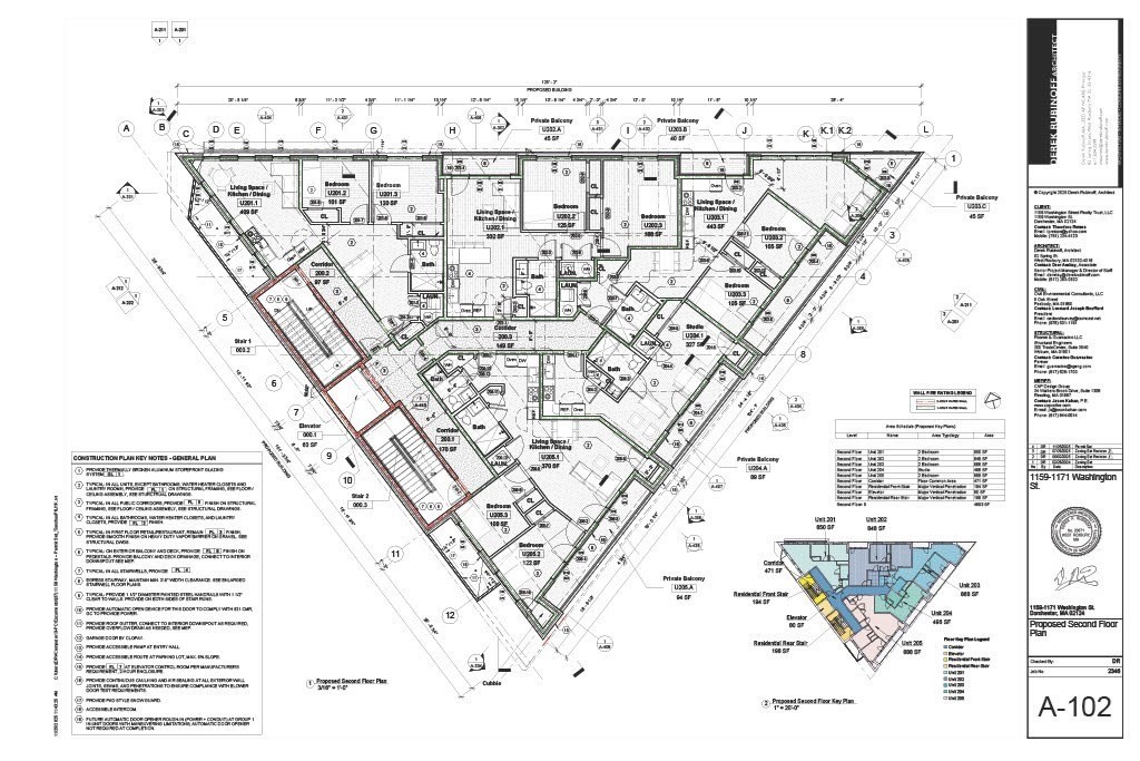
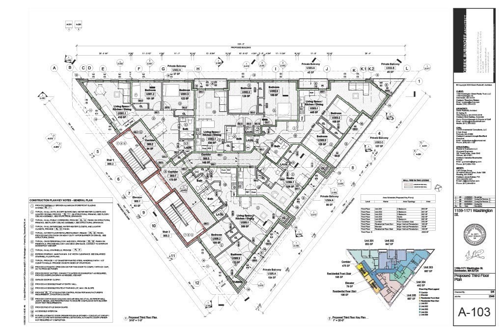
FULLY APPROVED DEVELOPMENT OPPORTUNITY IN HIGHLY DESIRABLE LOWER MILLS. Rare opportunity to develop a fully approved 15-unit mixed-use project at the landmark Spukies. Ideally positioned with proximity to MBTA red line stops giving direct access to Cambridge, this project benefits from excellent visibility and exposure in one of Boston’s most sought-after areas. Approved plans are in hand to construct 14 residential condominium units and 1 ground-floor commercial space, along with 6 on-site parking spaces—a significant advantage in this market. An exceptional opportunity for developers seeking a for-sale condominium project or investors looking to expand their rental portfolio in a strong, transit friendly, established neighborhood with shopping, restaurants all within a couple miles of downtown Boston.

offered at

$2,300,000

  • Listing ID: 73468292
  • Bedrooms: 30
  • Full Baths: 19
  • Living Area: 19,745 sqft Convert
  • Lot Size: 5,600 sqft Convert
  • Acres: 0.13

Additional Details

Type: Multi-Family, 5-9 Family

Area: Dorchester

Zip Code: 02124

Levels: 4

Parking

Garage: 6

Garage Capacity: 12

Parking Spaces: 12

Rooms and Dimensions

Total Units: 15

Total Floors: 4

Total Rooms: 90

Contact: LRG Boston at (617) 233-5800

LRGBOSTON.COM

355 Boylston St. Boston, MA 02116

Map

Photos