Luxury Real Estate Group Boston > Boston > 360 Athens St #360

LRG Boston

(617) 233-5800

355 Boylston St

Boston, Ma 02116

360 Athens St #360

Boston, MA

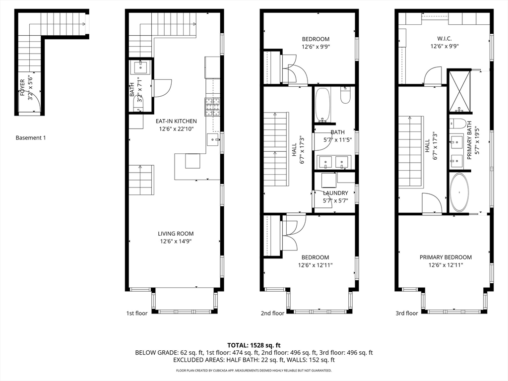
Property Description

$40k price drop for this amazing urban home! Step into modern luxury with this stunning 2022 South Boston townhouse. Built from the ground up and spanning four meticulously crafted levels, this sunlit home offers a heated garage with two tandem parking spaces, and an electric car charger. The open-concept first floor is perfect for entertaining, featuring a sleek kitchen with custom cabinetry, quartz countertops, tile backsplash, stainless steel appliances and a custom beverage bar. Upstairs, two sunlit bedrooms with built out closets, a full bath, and a laundry room add convenience. The third floor boasts a private primary suite with a spa-like en-suite bathroom with heated floors, soaking tub, stand-up shower, and a floating double vanity. Not to mention the sprawling custom built walk in closet! Natural light pours through large bay windows throughout the home. All in a prime South Boston location - don’t miss this incredible opportunity. Also listed as a single family in MLS: 73468

offered at

$1,549,000

  • Listing ID: 73468319
  • Bedrooms: 3
  • Full Baths: 2
  • Half Baths: 1
  • Living Area: 1,741 sqft Convert

Additional Details

Type: Condo, Condominium

Style: Townhouse

Zip Code: 02127

HOA Fee: $354

Living Levels: 4

Unit Level: 1

Parking

Garage: 2

Garage Capacity: 2

Parking: Attached, Under, Heated Garage, Tandem

Parking Spaces: 2

Rooms and Dimensions

Total Units: 2

Total Floors: 4

Total Rooms: 5

Contact: LRG Boston at (617) 233-5800

LRGBOSTON.COM

355 Boylston St. Boston, MA 02116

Map

Photos