Luxury Real Estate Group Boston > Wayland > 1 Cole Road

LRG Boston

(617) 233-5800

355 Boylston St

Boston, Ma 02116

1 Cole Road

Wayland, MA

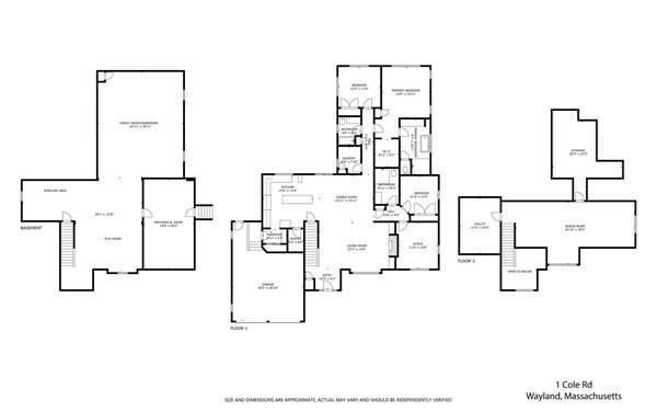
Property Description

NEW CONSTRUCTION modern farmhouse offering the space, craftsmanship, and lifestyle discerning buyers seek, with an expansive open floor plan, soaring ceilings, premium finishes, and strong energy efficiency in a community known for outstanding schools and convenient access to Boston. The chef’s kitchen features white cabinetry, quartz countertops, full-slab backsplash, an oversized island, and Thermador appliances including a 48" range, complemented by a Ruvati workstation sink, beverage center, and walk-in pantry with Costco door. Light-filled living and dining spaces showcase classic moldings, designer lighting, and an elegant fireplace. Designed for effortless single-level living with three bedrooms plus a versatile flex space ideal for office or guest use, three full baths, laundry, and seamless entertaining flow. A bonus room upstairs and a finished lower level provide flexible space for media, fitness, and recreation. Composite deck with gas grill hookup completes the home.

offered at

$2,175,000

  • Status: New
  • Listing ID: 73469106
  • Bedrooms: 4
  • Full Baths: 3
  • Living Area: 4,819 sqft Convert
  • Lot Size: 20,114 sqft Convert
  • Acres: 0.46

Additional Details

Type: Single Family, Single Family Residence

Zip Code: 01778

Parking

Garage: 2

Garage Capacity: 6

Parking: Attached, Garage Door Opener, Heated Garage, Garage Faces Side, Insulated, Paved Drive, Off Street, Paved

Parking Spaces: 6

Rooms and Dimensions

Total Rooms: 12

Contact: LRG Boston at (617) 233-5800

LRGBOSTON.COM

355 Boylston St. Boston, MA 02116

Map

Photos