Luxury Real Estate Group Boston > Plympton > 28 Brook St

LRG Boston

(617) 233-5800

355 Boylston St

Boston, Ma 02116

28 Brook St

Plympton, MA

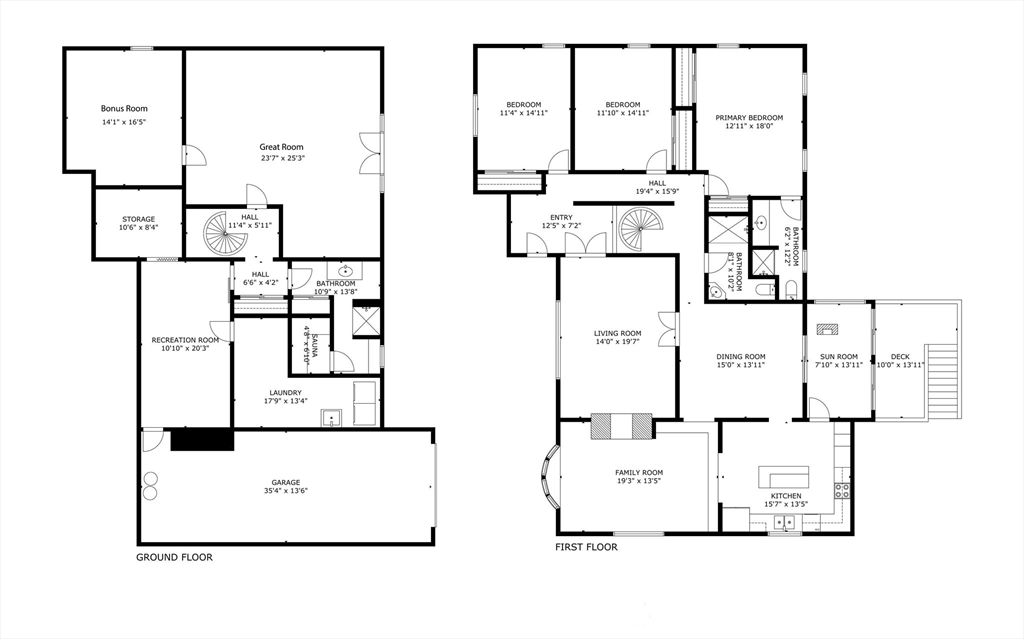
Property Description

Just 2 minutes from Rt 44, this renovated home surprises at every turn, offering space, privacy, and flexibility on a wooded 1.4-acre corner lot with 2 separate driveways. Step inside to discover a sunken family room featuring wide pine floors, cathedral ceilings, and a stunning stone fireplace. The bright living room adds warmth and character with exposed beams, a brick fireplace, and French doors. The kitchen shines with stainless steel appliances, granite countertops, abundant cabinetry, and an oversized two-level island with ample seating. The dining area flows seamlessly to a three-season room and deck overlooking a fenced portion of the backyard. The main level includes three generously sized bedrooms with spacious closets and two full baths. A spiral staircase leads to the fully finished, walk-out lower level offering exceptional versatility, including a large great room, bonus room, full bath with sauna, laundry room, utility space, and direct access to the oversized garage.

offered at

$695,000

  • Listing ID: 73469361
  • Bedrooms: 3
  • Full Baths: 3
  • Living Area: 5,014 sqft Convert
  • Lot Size: 60,871 sqft Convert
  • Acres: 1.4

Additional Details

Type: Single Family, Single Family Residence

Zip Code: 02367

Parking

Garage: 2

Garage Capacity: 10

Parking: Attached, Under, Off Street, Driveway, Stone/Gravel, Paved, Unpaved

Parking Spaces: 10

Rooms and Dimensions

Total Rooms: 9

Contact: LRG Boston at (617) 233-5800

LRGBOSTON.COM

355 Boylston St. Boston, MA 02116

Map

Photos