Luxury Real Estate Group Boston > Boston > 22 High Street #202

LRG Boston

(617) 233-5800

355 Boylston St

Boston, Ma 02116

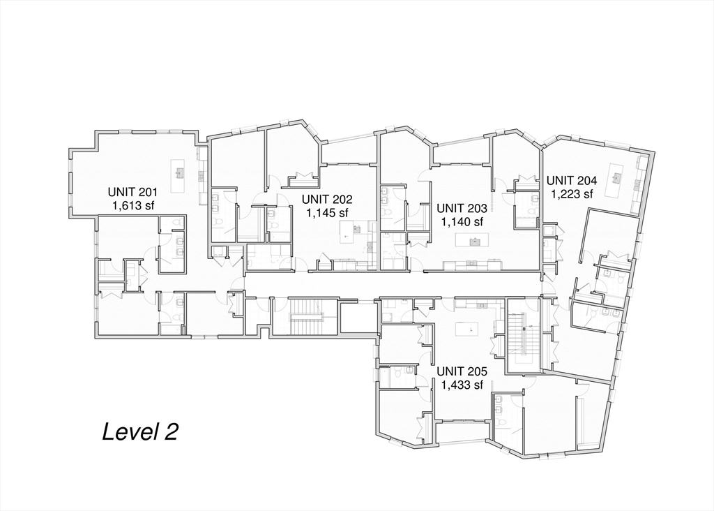
22 High Street #202

Boston, MA

Property Description

40% Reserved! Welcome to The Crown on High. This prominent new development, perched high on the hill with views of The Boston City Skyline - is waiting for you to call home! Walk into this second floor single level unit that comes with designer high end finishes, Bosch appliance package, high ceilings, open-concept kitchen living, and dining area with natural light. The primary suite is sure to impress with a spacious walk-in closet and an elegant en-suite bathroom. Great sized deck off the living room with city views! Designed for style and convenience with in-unit laundry and parking in the city! More building amenities include a common rooftop deck with gas grills and skyline vistas, plus an elevator accessing all levels, from garage to residence. Located in the heart of Dorchester, this home puts you steps from the city’s best dining, shopping, and transit—urban living at its finest. Units are reserving fast, reach out today to see your new home! A great value for NEW CONSTRUCTION

offered at

$749,000

  • Status: New
  • Listing ID: 73469767
  • Bedrooms: 2
  • Full Baths: 2
  • Living Area: 1,145 sqft Convert

Additional Details

Type: Condo, Condominium

Style: Mid-Rise

Area: Dorchester

Zip Code: 02122

HOA Fee: $345

Living Levels: 1

Unit Level: 2

Parking

Garage: 1

Garage Capacity: 1

Parking: Attached, Off Street

Parking Spaces: 1

Rooms and Dimensions

Total Units: 15

Total Floors: 1

Total Rooms: 5

Contact: LRG Boston at (617) 233-5800

LRGBOSTON.COM

355 Boylston St. Boston, MA 02116

Map

Photos