Luxury Real Estate Group Boston > Boston > 587 Tremont #4

LRG Boston

(617) 233-5800

355 Boylston St

Boston, Ma 02116

587 Tremont #4

Boston, MA

Property Description

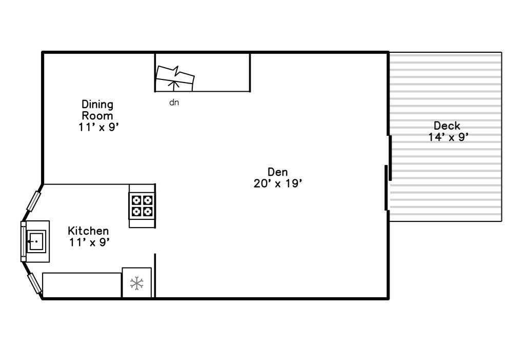
Stunning bi-level penthouse condo in the heart of the South End. This sun-filled residence offers two spacious bedrooms, both recently updated with new beautiful hardwood floors (not pictured in photos). The upper level showcases an open-concept kitchen and dining area, perfect for entertaining, flowing seamlessly into an oversized living room with soaring ceilings. Step directly out onto your private deck and take in sweeping views of the Boston skyline—an ideal backdrop for relaxing or hosting guests. A rare penthouse opportunity combining modern updates, dramatic living space, and an unbeatable South End location close to top restaurants, shops, and public transportation. The unit also features mini split cooling, and in unit laundry. Available 3/1! Pets allowed.

offered at

$5,000

  • Listing ID: 73470625
  • Bedrooms: 2
  • Full Baths: 1
  • Living Area: 1,085 sqft Convert
  • Lot Size: 999,999 sqft Convert

Additional Details

Type: Rental, Condominium

Area: South End

Zip Code: 02116

Unit Level: 4

Rooms and Dimensions

Total Rooms: 5

Contact: LRG Boston at (617) 233-5800

LRGBOSTON.COM

355 Boylston St. Boston, MA 02116

Map

Photos