Luxury Real Estate Group Boston > Middleboro > 70 Wall Street

LRG Boston

(617) 233-5800

355 Boylston St

Boston, Ma 02116

70 Wall Street

Middleboro, MA

Property Description

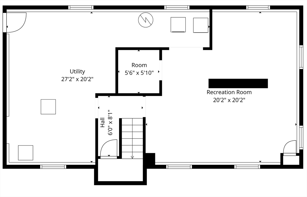
JUST MOVE RIGHT IN! If your New Year’s resolution is to buy a home you won’t find a better buy in 2026 than this 3 bedroom Raised Ranch! All the big ticket items have been done for you within the past 5 years so you can rest easy knowing that your future home comes with a new asphalt shingle roof in 2023, a new heating system in 2021, new oil tank in 2021, new hot water heater in 2022, fresh paint throughout the whole first floor in 2025, and a newly finished basement in 2025 with new recessed lighting, new laminate flooring, new walls, and new ceilings which adds square footage and floor plan flexibility. Situated on three quarters of an acre of level ground, you’ll have all the outdoor space you need, but it’s not just the lot size that makes this home special. You’ll fall in love with the beautiful hardwood floors throughout the first floor, enjoy the updated full bath, and get cozy with the working fireplace in the living room. First showings at the open house!

offered at

$525,000

  • Status: New
  • Listing ID: 73470953
  • Bedrooms: 3
  • Full Baths: 1
  • Living Area: 1,428 sqft Convert
  • Lot Size: 33,000 sqft Convert
  • Acres: 0.76

Additional Details

Type: Single Family, Single Family Residence

Zip Code: 02346

Parking

Garage Capacity: 6

Parking: Off Street, Stone/Gravel, Paved

Parking Spaces: 6

Rooms and Dimensions

Total Rooms: 8

Contact: LRG Boston at (617) 233-5800

LRGBOSTON.COM

355 Boylston St. Boston, MA 02116

Map

Photos