Luxury Real Estate Group Boston > Boston > 40 Everett St #40

LRG Boston

(617) 233-5800

355 Boylston St

Boston, Ma 02116

40 Everett St #40

Boston, MA

Property Description

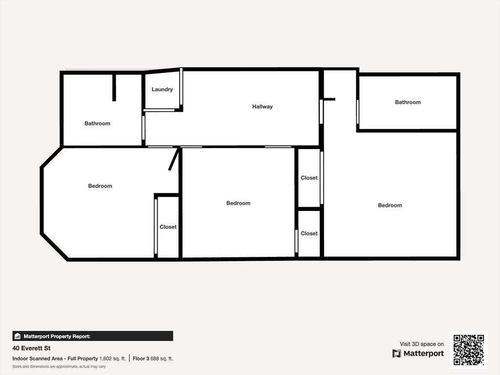
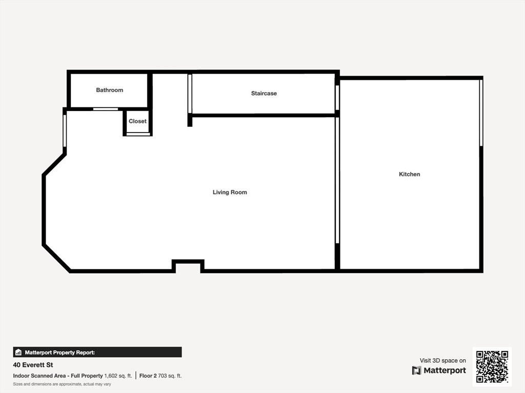
Welcome to 40 Everett Street in East Boston’s desirable Jeffries Point neighborhood. This spacious townhouse features 3 bedrooms plus a den, 2 full bathrooms on the upper level, and a convenient half bath on the main level. The home offers an open floor plan, wood floors throughout, and generously sized bedrooms, with a washer and dryer located on the bedroom level for added convenience. The finished basement flex space is perfect for a home office, gym, yoga studio, or whatever suits your lifestyle. Enjoy private outdoor space in both the front and rear, ideal for summer grilling after a day at the waterfront or returning from the Tall Ship.

offered at

$4,500

  • Status: New
  • Listing ID: 73472362
  • Bedrooms: 3
  • Full Baths: 2
  • Half Baths: 1
  • Living Area: 1,602 sqft Convert
  • Lot Size: 9,999,999 sqft Convert

Additional Details

Type: Rental, Attached (Townhouse/Rowhouse/Duplex)

Zip Code: 02128

Unit Level: 1

Rooms and Dimensions

Total Rooms: 7

Contact: LRG Boston at (617) 233-5800

LRGBOSTON.COM

355 Boylston St. Boston, MA 02116

Map

Photos