Luxury Real Estate Group Boston > Worcester > 25 Mckinley Rd

LRG Boston

(617) 233-5800

355 Boylston St

Boston, Ma 02116

25 Mckinley Rd

Worcester, MA

Property Description

A compelling opportunity for investors, contractors, and rehab specialists. This two-family property, in need of a full renovation, offers strong potential for buyers seeking a value-add project with long-term upside. The existing two-unit layout provides flexibility for future use, including rental income, owner-occupancy, or resale after improvements. With the right vision and investment, this property can be transformed into a desirable multi-family residence. The structure presents a blank canvas for reimagining floor plans, systems, finishes, and overall functionality. Property is being sold as-is, with no repairs or credits to be provided by the seller. The property will not qualify for all types of financing; cash or rehab financing is strongly recommended. Final smoke certifications are the buyer’s responsibility. Seller has never lived in the property. Group showing by appointment only Friday 1/30 4pm and Saturday 1/31 10am

offered at

$399,999

  • Status: New
  • Listing ID: 73472448
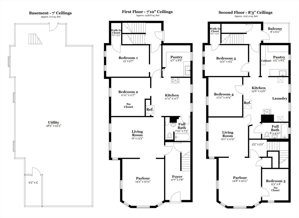
  • Bedrooms: 5
  • Full Baths: 2
  • Living Area: 2,475 sqft Convert
  • Lot Size: 6,900 sqft Convert
  • Acres: 0.16

Additional Details

Type: Multi-Family, Multi Family

Zip Code: 01605

Levels: 2

Parking

Garage: 2

Garage Capacity: 4

Parking: Paved Drive, Off Street

Parking Spaces: 4

Rooms and Dimensions

Total Units: 2

Total Floors: 2

Total Rooms: 12

Contact: LRG Boston at (617) 233-5800

LRGBOSTON.COM

355 Boylston St. Boston, MA 02116

Map

Photos