Luxury Real Estate Group Boston > Lunenburg > 601 Flathill Road

LRG Boston

(617) 233-5800

355 Boylston St

Boston, Ma 02116

601 Flathill Road

Lunenburg, MA

Property Description

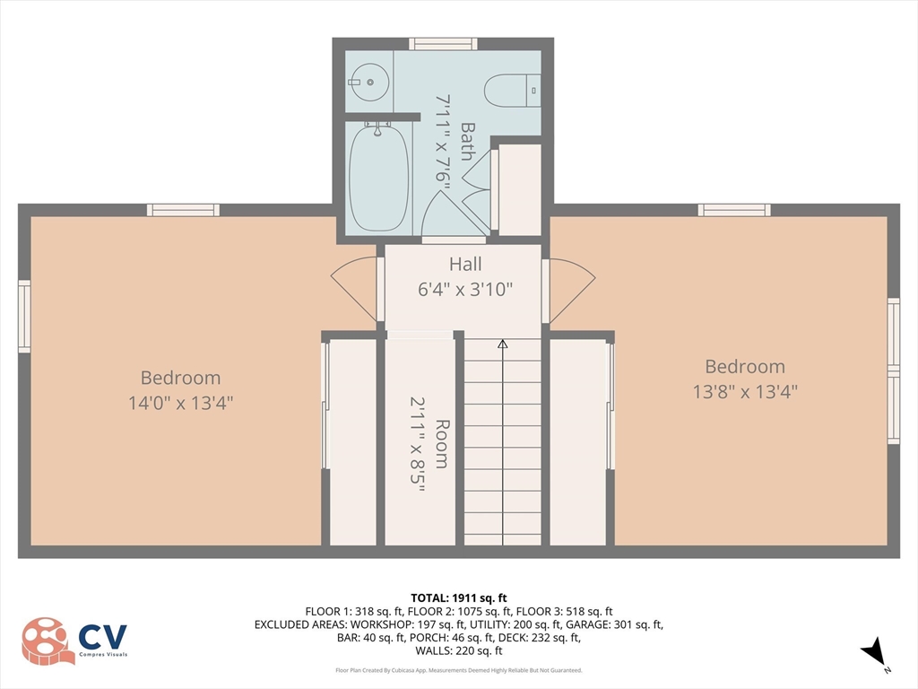
Builder's original home, then current family has owned for almost 50 years. Homes built like this, on this lot and in this location rarely come on the market. Many updates done over the years, more needed. Spacious Cape design with large rooms throughout. *3-4 bedrooms, 2 full baths with tubs. Inviting 19' living room with fireplace. Big bedrooms. Skylights. Kitchen with greenhouse box window, SS appliances, nice cabinets, and solid surface counters. Entertaining open floor plan, 13' dining room with atrium doors to wood deck overlooking almost One Acre of beautiful, wooded privacy. Wow! 21' lower-level family/game room with wet bar and custom fieldstone fireplace with wood stove. Heated 14' workshop, Oversized 24' garage. Large wood/storage shed/lean-to. Updates of various ages over the years; roof, 200 amp electrical, heating, windows, kitchen, doors. Won't qualify for FHA or VA due to needed repairs. Land of Many lakes, Shirley, Whalom, Hickory Hills. Golf, tennis, hiking & more.

offered at

$439,000

  • Listing ID: 73473038
  • Bedrooms: 4
  • Full Baths: 2
  • Living Area: 1,739 sqft Convert
  • Lot Size: 40,385 sqft Convert
  • Acres: 0.93

Additional Details

Type: Single Family, Single Family Residence

Zip Code: 01462

Parking

Garage: 1

Garage Capacity: 8

Parking: Attached, Under, Storage, Garage Faces Side, Paved Drive, Shared Driveway, Stone/Gravel, Paved

Parking Spaces: 8

Rooms and Dimensions

Total Rooms: 7

Contact: LRG Boston at (617) 233-5800

LRGBOSTON.COM

355 Boylston St. Boston, MA 02116

Map

Photos