Luxury Real Estate Group Boston > Fitchburg > 173 Myrtle Ave

LRG Boston

(617) 233-5800

355 Boylston St

Boston, Ma 02116

173 Myrtle Ave

Fitchburg, MA

Property Description

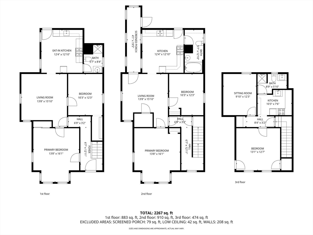
**Ask about fixed-rate options in the 4s & 1st-time homebuyer grants up to $50,000.** Prime 3-family investment opportunity in a high-demand rental location near Fitchburg State University and the Fitchburg Commuter Rail. Ideal for investors or owner-occupants seeking strong rental income potential. The second-floor unit is vacant, allowing for immediate occupancy or market-rate leasing. The first and second floor units each offer 2 bedrooms and 1 full bath, while the third-floor unit features 1 bedroom and 1 bath. Property includes 5+ off-street parking spaces—an added value for tenants in this area. Conveniently located near downtown Fitchburg, public transportation, shopping, and major routes. Strong income potential in a consistently sought-after rental market.

offered at

$539,000

  • Status: New
  • Listing ID: 73474081
  • Bedrooms: 5
  • Full Baths: 3
  • Living Area: 2,547 sqft Convert
  • Lot Size: 3,250 sqft Convert
  • Acres: 0.07

Additional Details

Type: Multi-Family, 3 Family

Zip Code: 01420

Levels: 3

Parking

Garage Capacity: 5

Parking: Off Street

Parking Spaces: 5

Rooms and Dimensions

Total Units: 3

Total Floors: 3

Total Rooms: 13

Contact: LRG Boston at (617) 233-5800

LRGBOSTON.COM

355 Boylston St. Boston, MA 02116

Map

Photos