Luxury Real Estate Group Boston > Fitchburg > 910 Fisher Road

LRG Boston

(617) 233-5800

355 Boylston St

Boston, Ma 02116

910 Fisher Road

Fitchburg, MA

Property Description

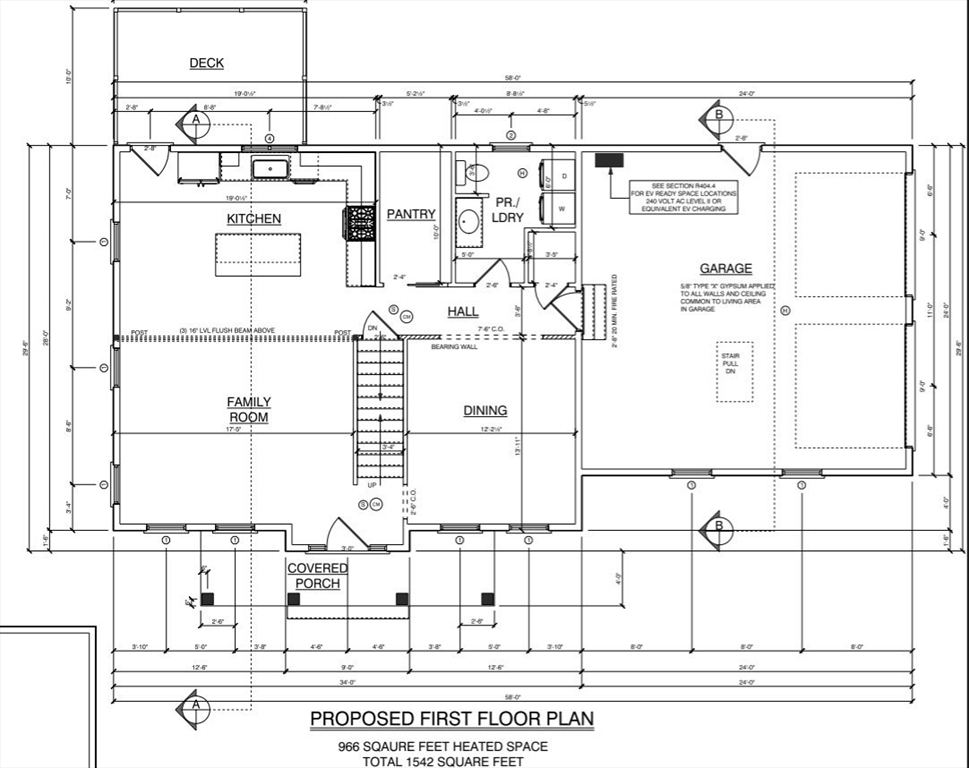
Your new construction dream home is within reach on this beautiful 1.91-acre private fully cleared field lot. This to be built thoughtfully designed home plan offers generous living spaces, an open-concept kitchen, dining, and living area which is ideal for entertaining. The 2nd floor features 3 bedrooms with a well appointed primary suite. The gently sloping cleared lot with side septic design and city water provides plenty of space for your backyard dreams with a walk out basement. The building area is build ready and can start immediately. Build this plan, bring your own plans, just buy the lot (see land listing) or we can help you find the perfect plan for you and help you build your dream home. Budgets from $600k and up can be accommodated on this lot. Building your dream home doesn't have to be scary when you work with the right team. Interested in just buying the lot? See lot listing for more information or call for details!

offered at

$650,000

  • Listing ID: 73474172
  • Bedrooms: 2
  • Full Baths: 2
  • Half Baths: 1
  • Living Area: 1,932 sqft Convert
  • Lot Size: 83,199 sqft Convert
  • Acres: 1.91

Additional Details

Type: Single Family, Single Family Residence

Zip Code: 01420

Parking

Garage: 2

Garage Capacity: 2

Parking: Attached,Off Street,Garage

Parking Spaces: 6

Rooms and Dimensions

Total Rooms: 9

Has Basement: Yes

Contact: LRG Boston at (617) 233-5800

LRGBOSTON.COM

355 Boylston St. Boston, MA 02116

Map

Photos