Luxury Real Estate Group Boston > Northampton > 30 View Ave #A

LRG Boston

(617) 233-5800

355 Boylston St

Boston, Ma 02116

30 View Ave #A

Northampton, MA

Property Description

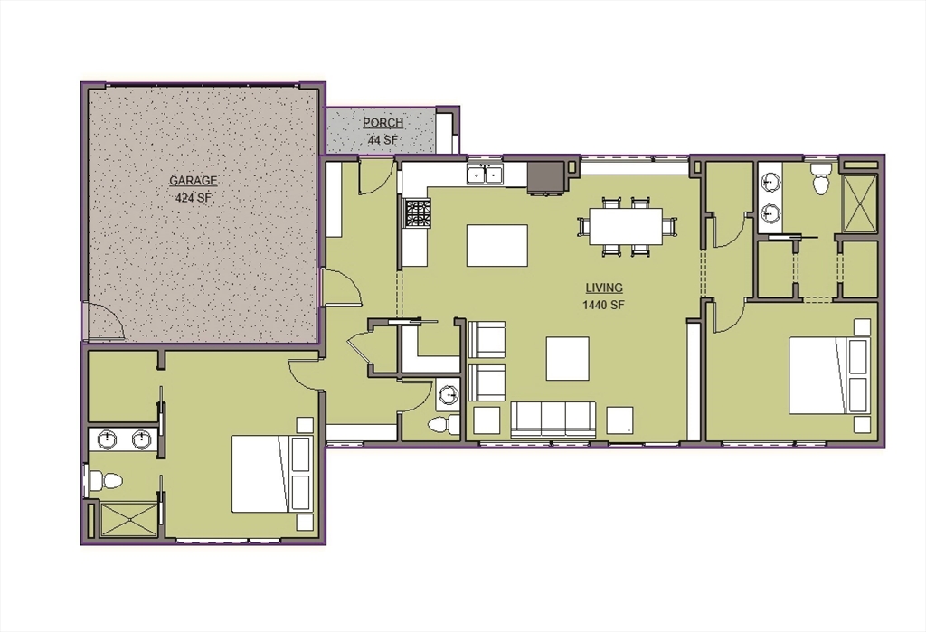
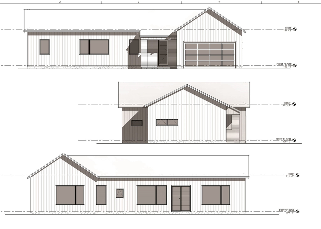
Discover Trails Edge Commons! Luxury Living Meets Sustainability in Downtown Northampton. 6 NEW freestanding homes in a peaceful enclave. This stunning net-zero ready condominium community is just a 5 minute walk to the center of Northampton and steps from the Mass Central Bike Trail. Custom modern ranch features 2 full main bedroom suites with gorgeous bathrooms, double vanities and walk in closets, nicely separated for privacy. 3 bedroom option available. Large mudroom entry from the 2 car garage. Open layout, premium finishes & smart design throughout. Bike storage and EV car charger. Built with carbon-neutral practices, ultra-efficient double wall construction, and a strong commitment to sustainable living. Low-maintenance, high-performance modern lifestyle in a quiet neighborhood setting. Prime location. Walk or Bike to everything! Pets welcome. Beautifully crafted by Sovereign Builders, one of Northampton's finest builders. Let us build you the home of your Dreams.

offered at

$1,125,000

  • Status: New
  • Listing ID: 73475631
  • Bedrooms: 2
  • Full Baths: 2
  • Half Baths: 1
  • Living Area: 1,440 sqft Convert
  • Lot Size: 217,800 sqft Convert
  • Acres: 5

Additional Details

Type: Single Family, Single Family Residence

Zip Code: 01060

HOA Fee: $380

Parking

Garage: 2

Garage Capacity: 4

Parking: Attached, Garage Door Opener, Storage, Paved Drive, Off Street, Paved

Parking Spaces: 4

Rooms and Dimensions

Total Rooms: 6

Contact: LRG Boston at (617) 233-5800

LRGBOSTON.COM

355 Boylston St. Boston, MA 02116

Map

Photos