Luxury Real Estate Group Boston > Boston > 68 Mascot St

LRG Boston

(617) 233-5800

355 Boylston St

Boston, Ma 02116

68 Mascot St

Boston, MA

Property Description

Attention investors, contractors, and value-add buyers. This two-family property offers strong upside potential for resale or long-term rental income. Both units are currently vacant, providing immediate access for renovations and the ability to set market rents from day one.The property is ideal for buyers looking to add their own finishing touches and build equity with some TLC. Perfect for a flip, condo conversion, or buy-and-hold investment. Live in one unit while the second unit helps offset or potentially cover the mortgage, or rent both units for strong cash flow in a high-demand Dorchester rental market.Conveniently located near public transportation, local shops, and major routes, making it attractive to both owner-occupants and tenants alike.Highlights:Two-family investment opportunityBoth units vacant – easy to showValue-add potentialIdeal for contractors and investorsStrong rental demand areaGreat for resale or long-term holdProperty sold as-is.

offered at

$715,000

  • Status: New
  • Listing ID: 73477705
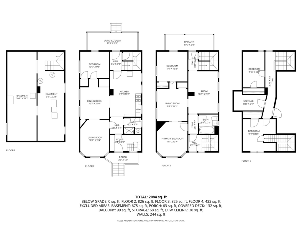
  • Bedrooms: 5
  • Full Baths: 2
  • Living Area: 2,047 sqft Convert
  • Lot Size: 2,520 sqft Convert
  • Acres: 0.06

Additional Details

Type: Multi-Family, 2 Family - 2 Units Up/Down

Zip Code: 02124

Levels: 3

Parking

Parking: Off Street

Rooms and Dimensions

Total Units: 2

Total Floors: 3

Total Rooms: 10

Contact: LRG Boston at (617) 233-5800

LRGBOSTON.COM

355 Boylston St. Boston, MA 02116

Map

Photos