Luxury Real Estate Group Boston > Norwell > 3 Harbor Lane

LRG Boston

(617) 233-5800

355 Boylston St

Boston, Ma 02116

3 Harbor Lane

Norwell, MA

Property Description

Set in one of Norwell’s most sought-after locations along the North River, this newly constructed residence offers an exceptional blend of timeless architecture and refined modern living. Thoughtfully designed for today’s lifestyle, the home showcases expansive, light-filled interiors, a beautifully scaled kitchen that flows seamlessly into the family room, and versatile living spaces ideal for entertaining, working from home, or hosting extended guests. A covered front porch and rear deck create effortless indoor-outdoor living, while the lower level provides exceptional expansion potential, offering the opportunity to create additional living, recreation, fitness, or guest space tailored to your needs. Ideally positioned just minutes to Norwell’s town center and the commuter rail to Boston, this home presents a rare opportunity to invest in elevated new construction within a highly coveted North River setting. **Under construction with anticipated delivery in Spring 2026.**

offered at

$2,399,000

  • Listing ID: 73478309
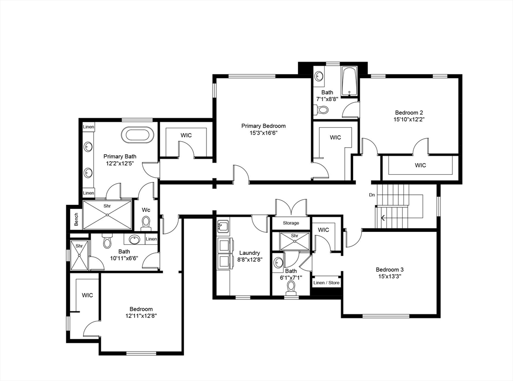
  • Bedrooms: 5
  • Full Baths: 4
  • Half Baths: 1
  • Living Area: 4,100 sqft Convert
  • Lot Size: 64,904 sqft Convert
  • Acres: 1.49

Additional Details

Type: Single Family, Single Family Residence

Zip Code: 02061

Parking

Garage: 2

Garage Capacity: 6

Parking: Attached, Paved Drive, Off Street

Parking Spaces: 6

Rooms and Dimensions

Total Rooms: 12

Contact: LRG Boston at (617) 233-5800

LRGBOSTON.COM

355 Boylston St. Boston, MA 02116

Map

Photos