Luxury Real Estate Group Boston > Boston > 24 Chester St

LRG Boston

(617) 233-5800

355 Boylston St

Boston, Ma 02116

24 Chester St

Boston, MA

Property Description

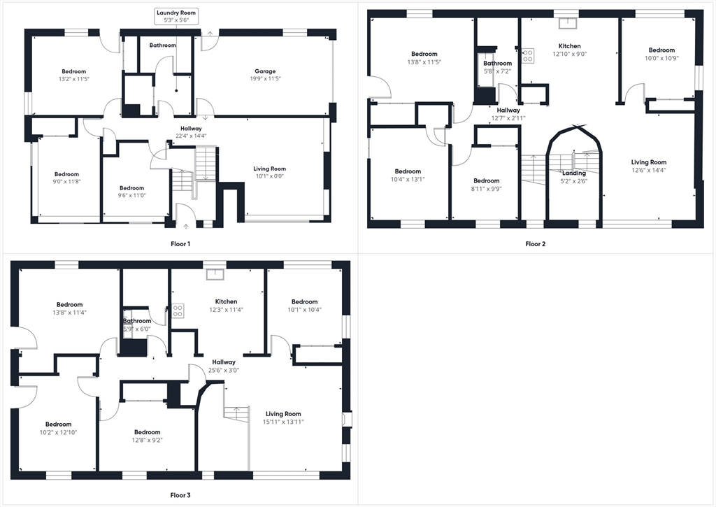
Investment | 1031 Exchange opportunity in A+++ location! Completely renovated in 2006 with all hardwood floors, central air for heating/cooling. Both units have laundry in-unit, granite countertop kitchen with stainless steel appliances. 100% occupancy throughout the years. Current lease ends 8/31/26. New rents 9/1/26-8/31/27 ($6300/month, $4675/month). Off-street parking available in the back parking lot. Unbeatable location, minutes to Harvard Ave MBTA, all cafes, bars, restaurants on Harvard Ave, Brighton Ave. Convenient to students of Boston University, Boston College and surrounding universities. Value-add opportunity to do a 3 unit conversion by dividing unit 1 into two units. Possibility to enclosing the garage and finishing the attic for additional living area. Adjacent property; 16-22 Reedsdale St Allston MA is also for sale and it can be sold as a package.

offered at

$1,800,000

  • Listing ID: 73478334
  • Bedrooms: 11
  • Full Baths: 3
  • Half Baths: 1
  • Living Area: 4,086 sqft Convert
  • Lot Size: 5,000 sqft Convert
  • Acres: 0.11

Additional Details

Type: Multi-Family, Multi Family

Area: Allston

Zip Code: 02134

Levels: 3

Parking

Garage: 1

Garage Capacity: 5

Parking: Off Street

Parking Spaces: 5

Rooms and Dimensions

Total Units: 2

Total Floors: 3

Total Rooms: 16

Contact: LRG Boston at (617) 233-5800

LRGBOSTON.COM

355 Boylston St. Boston, MA 02116

Map

Photos