Luxury Real Estate Group Boston > Boston > 174 Cornell St

LRG Boston

(617) 233-5800

355 Boylston St

Boston, Ma 02116

174 Cornell St

Boston, MA

Property Description

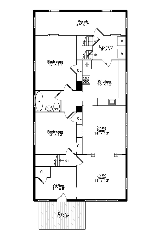
Short Distance to Roslindale Square.. Well Maintained Large Two Family With Long Driveway and Off Street Parking .. Newer Roof and Hardwood Floors Throughout! First Unit with Walk in Mud Room/ Foyer.. Featuring 2 Bedroom 1 Bath with Large Eat in Kitchen with Pantry and Laundry In-Unit! Living Room and Formal Dining Room! Unit 2 Featuring 2 Levels Living With 4 Bedrooms 2 Bathrooms ,Living Room And Formal Dining Room, Family Room and In-Unit Laundry! Basement Has been Been Partially Converted Into Potential Additional Living Area! Sold As Is!

offered at

$899,000

  • Status: New
  • Listing ID: 73478506
  • Bedrooms: 6
  • Full Baths: 3
  • Half Baths: 1
  • Living Area: 2,700 sqft Convert
  • Lot Size: 4,730 sqft Convert
  • Acres: 0.11

Additional Details

Type: Multi-Family, 2 Family - 2 Units Up/Down

Area: Roslindale

Zip Code: 02131

Levels: 3

Parking

Garage Capacity: 3

Parking: Paved Drive, Off Street

Parking Spaces: 3

Rooms and Dimensions

Total Units: 2

Total Floors: 3

Total Rooms: 14

Contact: LRG Boston at (617) 233-5800

LRGBOSTON.COM

355 Boylston St. Boston, MA 02116

Map

Photos