Luxury Real Estate Group Boston > Boston > 28 Port Norfolk St

LRG Boston

(617) 233-5800

355 Boylston St

Boston, Ma 02116

28 Port Norfolk St

Boston, MA

Property Description

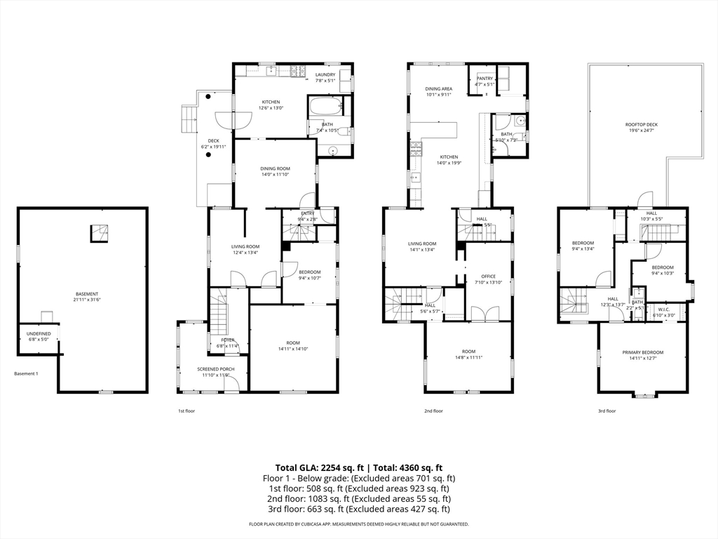
Prime development and rehab opportunity in Dorchester’s coveted Port Norfolk neighborhood. This legal 2 family at 28 Port Norfolk Street sits at the far right edge of a large 7,400+ sqft lot and offers 3,760 sqft of living space, ideal for experienced builders, contractors, and investors seeking value and upside.Unit 1 is mostly gutted and requires substantial work to be habitable. Unit 2 has been renovated and features a nearly 400 sqft roof deck, adding strong future rental or condo conversion appeal. The oversized parcel presents possible expansion or redevelopment potential. All buyers to perform their own due diligence regarding development options. Located in a waterfront community near the Neponset River and Dorchester Bay, with access to Tenean Beach, Joseph Finnegan Park, Pope John Paul II Park, and the Lower Neponset River Trail. Rare opportunity in a desirable coastal enclave with significant upside.

offered at

$999,000

  • Status: New
  • Listing ID: 73478590
  • Bedrooms: 5
  • Full Baths: 2
  • Half Baths: 1
  • Living Area: 3,760 sqft Convert
  • Lot Size: 7,413 sqft Convert
  • Acres: 0.17

Additional Details

Type: Multi-Family, Multi Family

Area: Dorchester

Zip Code: 02122

Levels: 3

Parking

Garage: 2

Garage Capacity: 4

Parking: Paved Drive, Off Street

Parking Spaces: 4

Rooms and Dimensions

Total Units: 2

Total Floors: 3

Total Rooms: 16

Contact: LRG Boston at (617) 233-5800

LRGBOSTON.COM

355 Boylston St. Boston, MA 02116

Map

Photos