Luxury Real Estate Group Boston > Wrentham > Loty 3-14 Earle Stewart Ln

LRG Boston

(617) 233-5800

355 Boylston St

Boston, Ma 02116

Loty 3-14 Earle Stewart Ln

Wrentham, MA

Property Description

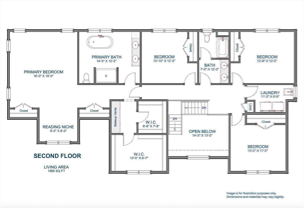
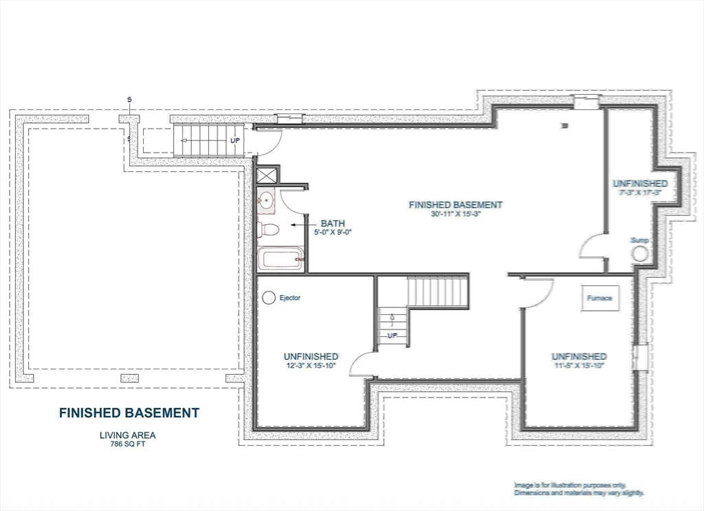
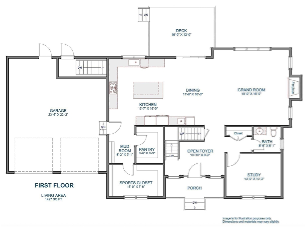
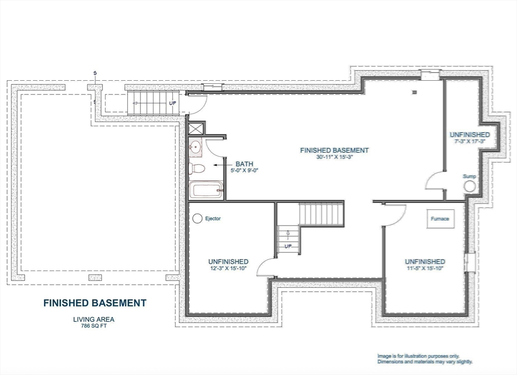
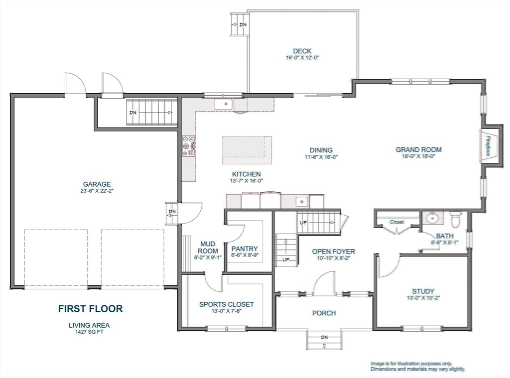
5yr Home Warranty Included. MOVE IN NOW. Ask us about the special mortgage programs - fixed at 4.99% for 30yrs. Welcome to King Philip Estates! This stunning 4BR Colonial offers 4,193sf of luxury living in a cul-de-sac community w/ amazing curb appeal, featuring board & batten siding, black windows, & charming covered front entry. Located w/ easy access to Route 495 & the Outlets. A grand foyer w/ custom staircase, black balusters, & elegant moldings sets the stage. The family room features a fireplace w/ shiplap woodwork & oversized first-floor windows. The custom kitchen boasts a coffered accent ceiling over the island, Thermador appliances, & a spacious island. The vaulted primary suite offers a spa-like bath, 4 closets & a vanity area. The finished bsmnt has a full bath & direct access to the rear yard via a dedicated staircase. Outside, enjoy a composite deck, professional landscaping & a fenced yard. Don’t miss this opportunity-schedule your private showing today!! 7 others avail

offered at

$1,549,000

  • Status: New
  • Listing ID: 73479224
  • Bedrooms: 4
  • Full Baths: 3
  • Half Baths: 1
  • Living Area: 4,193 sqft Convert
  • Lot Size: 40,200 sqft Convert
  • Acres: 0.92

Additional Details

Type: Single Family, Single Family Residence

Zip Code: 02093

Parking

Garage: 2

Garage Capacity: 6

Parking: Attached, Garage Door Opener, Garage Faces Side, Paved Drive, Off Street, Paved

Parking Spaces: 6

Rooms and Dimensions

Total Rooms: 9

Contact: LRG Boston at (617) 233-5800

LRGBOSTON.COM

355 Boylston St. Boston, MA 02116

Map

Photos