Luxury Real Estate Group Boston > Brookline > 16 Parkman Street #1

LRG Boston

(617) 233-5800

355 Boylston St

Boston, Ma 02116

16 Parkman Street #1

Brookline, MA

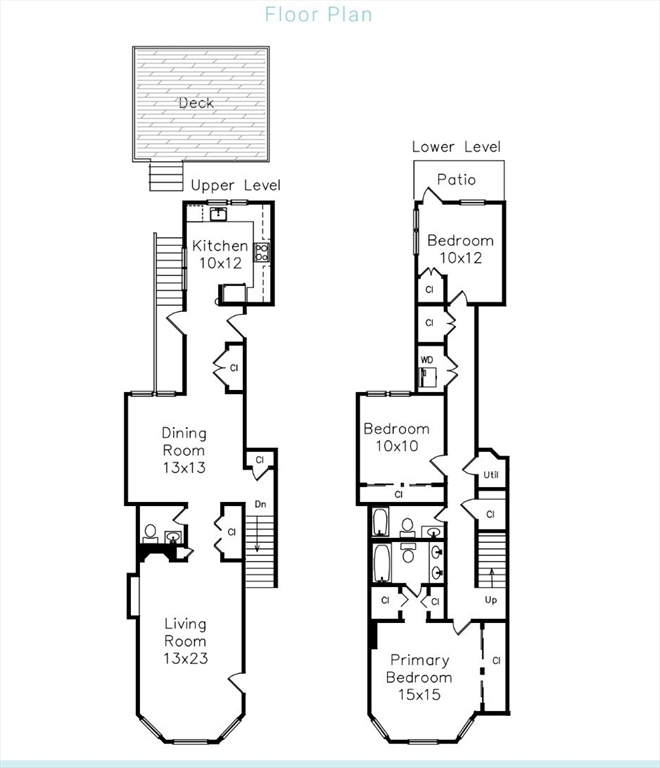
Property Description

Set in a prime Coolidge Corner location, this exceptional 1,776 sq ft condo showcases custom renovations throughout The main level features high ceilings, a sun-filled living room w bay windows, and a gas fireplace, flowing seamlessly into a spacious dining area. The thoughtfully renovated kitchen offers quartz countertops, custom cabinetry, stainless steel appliances, and generous storage, A door off the kitchen leads to stairs accessing a patio and large private deck—ideal for outdoor entertaining. Spacious and serene primary suite with bay window, spa-like double-vanity en suite bath, and exceptional custom closet systems, plus two additional bedrooms, a full bath, and in-unit laundry. Additional upgrades include new HVAC systems, hot water heater, flooring, and trim. Set in a professionally managed, 4-unit building with storage, tandem parking with1 garage and 1exterior space. Convenient to Coolidge Corner shops, cafés, parks, the T and Longwood Medical.

offered at

$1,500,000

  • Status: New
  • Listing ID: 73479663
  • Bedrooms: 3
  • Full Baths: 2
  • Half Baths: 1
  • Living Area: 1,776 sqft Convert

Additional Details

Type: Condo, Condominium

Style: Brownstone

Area: Coolidge Corner

Zip Code: 02446

HOA Fee: $791

Living Levels: 2

Unit Level: 1

Parking

Garage: 1

Garage Capacity: 2

Parking: Attached, Under, Garage Door Opener, Assigned, Off Street, Tandem, Paved

Parking Spaces: 2

Rooms and Dimensions

Total Units: 4

Total Floors: 2

Total Rooms: 6

Contact: LRG Boston at (617) 233-5800

LRGBOSTON.COM

355 Boylston St. Boston, MA 02116

Map

Photos