Luxury Real Estate Group Boston > Brookline > 15 Kent Sq

LRG Boston

(617) 233-5800

355 Boylston St

Boston, Ma 02116

15 Kent Sq

Brookline, MA

Property Description

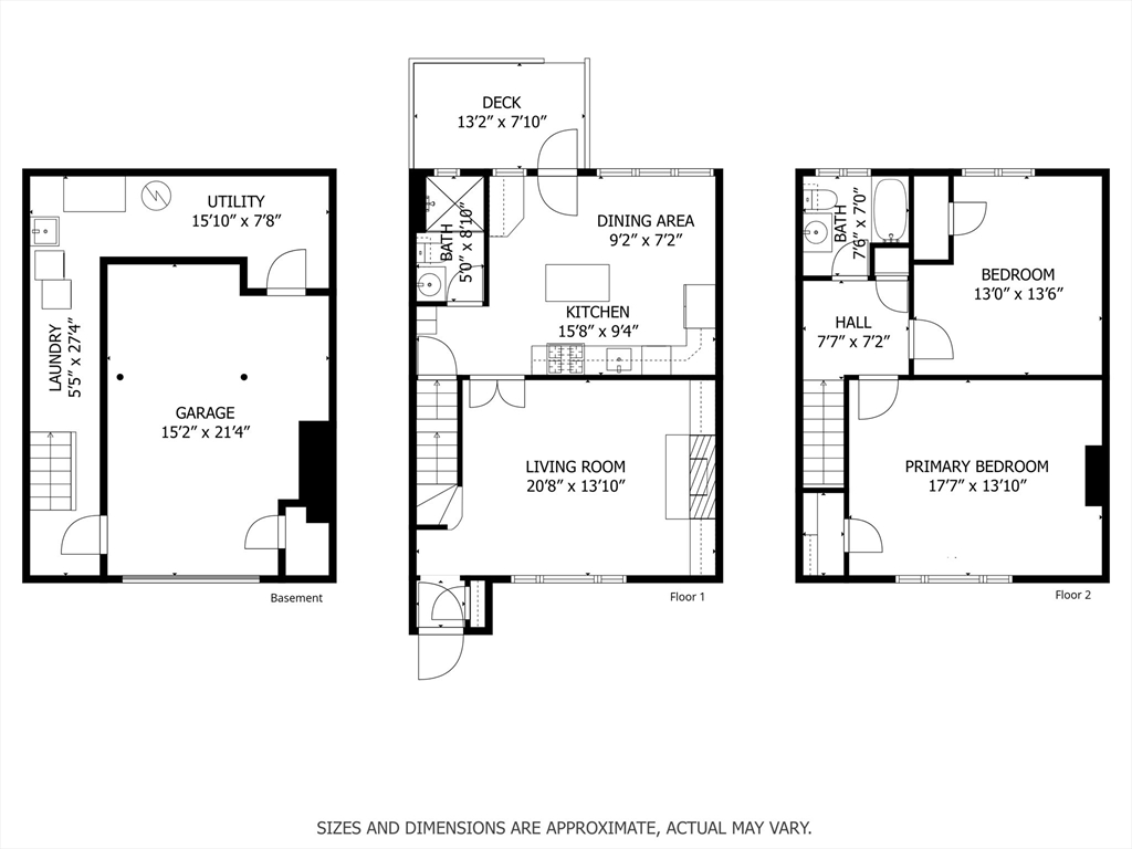
Hidden gem in prime Brookline location! Nestled on a quiet side street, yet conveniently located close to the vibrant shops and restaurants of Brookline Village, Coolidge Corner, the MBTA Green lines, Longwood medical area, and Lawrence School. This attached single-family home has been renovated throughout and offers a stunning cook's kitchen with Bosch appliances, breakfast bar and dining area. The kitchen opens out onto a covered deck and private fenced garden that provides a beautiful hidden sanctuary, with a professionally landscaped perennial garden. The first floor also features a living room with gleaming wood floors and fireplace and a renovated full bath. On the second floor you will find two generous bedrooms and a renovated full bath with high-end finishes. The basement has storage and laundry, and the attached garage is heated offering a flex space that could be used as a home gym, play space or office. This elegant urban oasis offers the best that Brookline has to offer!

offered at

$1,549,000

  • Status: New
  • Listing ID: 73479713
  • Bedrooms: 2
  • Full Baths: 2
  • Living Area: 1,276 sqft Convert
  • Lot Size: 2,156 sqft Convert
  • Acres: 0.05

Additional Details

Type: Single Family, Single Family Residence

Area: Brookline Village

Zip Code: 02446

Parking

Garage: 1

Garage Capacity: 2

Parking: Attached, Under, Heated Garage, Storage, Off Street, Driveway

Parking Spaces: 2

Rooms and Dimensions

Total Rooms: 5

Contact: LRG Boston at (617) 233-5800

LRGBOSTON.COM

355 Boylston St. Boston, MA 02116

Map

Photos