Luxury Real Estate Group Boston > Manchester > 159 Pine St

LRG Boston

(617) 233-5800

355 Boylston St

Boston, Ma 02116

159 Pine St

Manchester, MA

Property Description

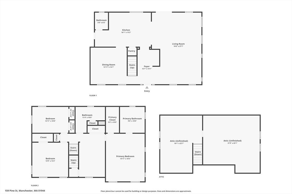
Move right in! Amazing value in this newly renovated 1997-built home 2 miles to Singing Beach! Huge Lot! Seller just installed new grass yard / fenced in area! Beautiful real solid hardwood floors throughout. Tons of windows let the sun shine into this bright & airy home. 1st floor: Open Floor plan with tons of space + half bath. 2nd floor: 3 bedrooms, 2 Full designer baths, laundry area, + sitting room / home office. 3rd floor: amazing unfinished walk-up attic can easily be finished to add extra bedrooms, baths, or whatever you can imagine! Lower level: huge, clean basement w/ high ceilings to provide significant extra square footage for future expansion. Backyard features a huge two-tiered deck with a hot tub & outdoor shower - perfect for relaxation and entertaining. Homes like this rarely become available in this desirable area.

offered at

$1,185,000

  • Listing ID: 73479727
  • Bedrooms: 3
  • Full Baths: 2
  • Half Baths: 1
  • Living Area: 2,352 sqft Convert
  • Lot Size: 18,761 sqft Convert
  • Acres: 0.43

Additional Details

Type: Single Family, Single Family Residence

Zip Code: 01944

Parking

Garage Capacity: 4

Parking: Paved

Parking Spaces: 4

Rooms and Dimensions

Total Rooms: 7

Contact: LRG Boston at (617) 233-5800

LRGBOSTON.COM

355 Boylston St. Boston, MA 02116

Map

Photos