Luxury Real Estate Group Boston > Dennis > 65 Inman Rd #A

LRG Boston

(617) 233-5800

355 Boylston St

Boston, Ma 02116

65 Inman Rd #A

Dennis, MA

Property Description

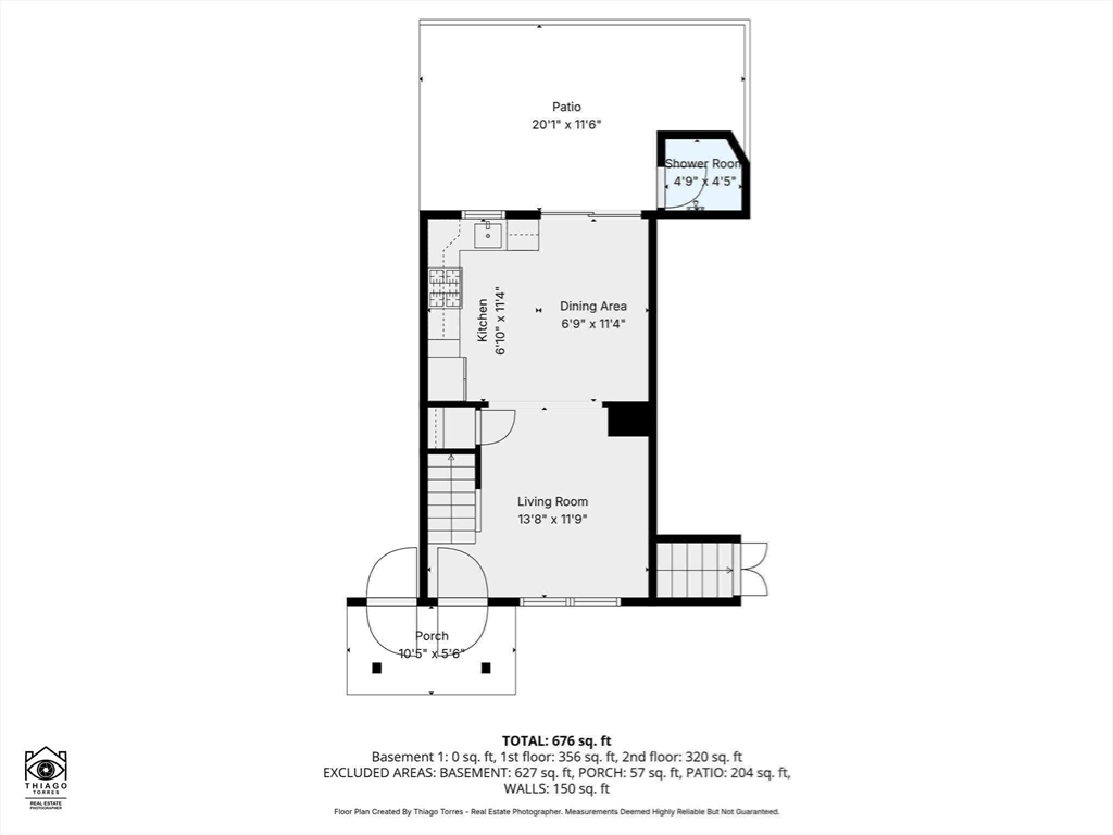
Live the Cape Cod lifestyle in this year-round townhouse in sought-after Dennisport! Just 300 yards to popular Inman Rd beach and directly across from Seaview Park, this 8-unit condominium community offers the perfect coastal retreat. Spend summer days at the beach or relax by the 20x40 association pool, then rinse off in your outdoor shower. Located on a quiet road ideal for walking, biking, and enjoying the outdoors. The first floor features a bright, open living room, kitchen, and dining area with a slider leading to your patio--perfect for grilling and entertaining. The second floor has the 2 bedrooms & updated bathroom. The basement provides additional storage along with a private washer and dryer for added convenience. Whether you're seeking a year-round home, vacation getaway, or investment opportunity, this DPort gem offers the best of Cape Cod living close to beaches, dining, and local attractions such as The Ocean House, The Pelham House and Sundae School

offered at

$424,900

  • Status: Back on Market
  • Listing ID: 73480483
  • Bedrooms: 2
  • Full Baths: 1
  • Living Area: 644 sqft Convert

Additional Details

Type: Single Family, Single Family Residence

Zip Code: 02639

HOA Fee: $315

Parking

Garage Capacity: 1

Parking Spaces: 1

Rooms and Dimensions

Total Rooms: 4

Contact: LRG Boston at (617) 233-5800

LRGBOSTON.COM

355 Boylston St. Boston, MA 02116

Map

Photos