Luxury Real Estate Group Boston > Somerville > 98 Elm #1

LRG Boston

(617) 233-5800

355 Boylston St

Boston, Ma 02116

98 Elm #1

Somerville, MA

Property Description

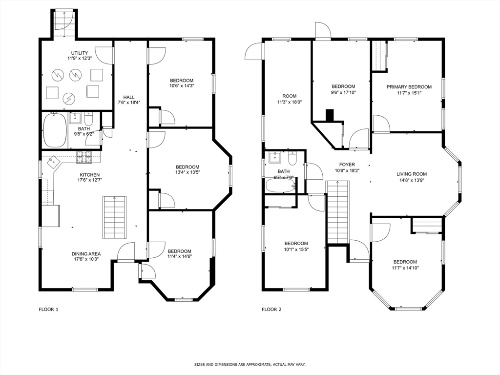
Amazing unit in an unbeatable Porter Square location! Newly renovated 7BR/2BA two-level home just a 2-minute walk to the Red Line. Features a brand-new kitchen with granite countertops and stainless GE appliances (DW, disposal & chef’s hood). Spacious, sun-filled bedrooms plus two living rooms and two dining areas—ideal for entertaining or flexible layouts. App-based laundry in the basement. Bus line directly in front; street parking available. Steps to Dunkin’, 24-hr CVS, Star Market, Panera, Fitness Now Gym, Cambridge Savings Bank, and countless bars and restaurants. Lease ends 8/31 of any year. Unit occupied. Owners may waive last month’s rent upfront for qualified applicants—bring offers!

offered at

$8,350

  • Listing ID: 73480570
  • Bedrooms: 7
  • Full Baths: 2
  • Living Area: 1,400 sqft Convert

Additional Details

Type: Rental, Apartment

Area: Davis Square

Zip Code: 01244

Unit Level: 1

Rooms and Dimensions

Total Rooms: 12

Contact: LRG Boston at (617) 233-5800

LRGBOSTON.COM

355 Boylston St. Boston, MA 02116

Map

Photos