Luxury Real Estate Group Boston > Cambridge > 29 Wheeler Street #310

LRG Boston

(617) 233-5800

355 Boylston St

Boston, Ma 02116

29 Wheeler Street #310

Cambridge, MA

Property Description

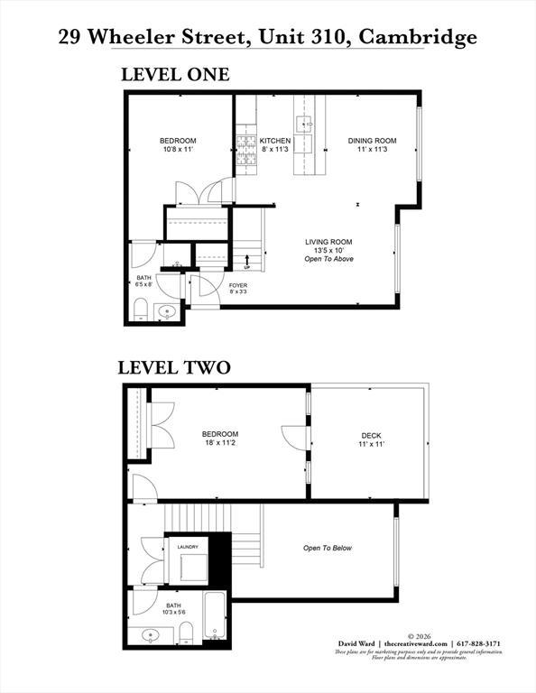
Welcome home to Wheeler St, a place with the best of both privacy and convenience in Cambridge. Open living space w/ double height ceilings plus a mezzanine loft draws in dramatic natural light. Entr. opens to main lvng area, both cozy & spacious w/ wndws stretching the double height. Partially open kitchen outfitted w/ granite counter tops, stnls steel applncs, & peninsula w/ counter height seating. Kitchen opens to dining room w/ overhead lighting & oversized windows. Ascend to a 2nd level featuring a primary bdrm w/ generous closet & balcony w/ exclusive outdoor space large enough to host a dinner party and a kitchen garden. W/D in unit, full bath with shower and tub combo and a vanity with ample storage complete this level. On the 1st floor, tucked behind kitchen, is a 2nd bdrm. With a large closet & en suite bath w/ walk-in shower, a perfect Peloton and yoga space. 1 deeded, heated garage space. Across from Fresh Pond Res. Alewife T, Whole Fds & T Joe's 0.5 mi per Google Maps.

offered at

$959,000

  • Status: New
  • Listing ID: 73480931
  • Bedrooms: 2
  • Full Baths: 2
  • Living Area: 1,038 sqft Convert

Additional Details

Type: Condo, Condominium

Style: Mid-Rise

Zip Code: 02138

HOA Fee: $564

Living Levels: 2

Unit Level: 3

Parking

Garage: 1

Garage Capacity: 1

Parking: Attached, Heated Garage, Deeded

Parking Spaces: 1

Rooms and Dimensions

Total Units: 72

Total Floors: 2

Total Rooms: 4

Contact: LRG Boston at (617) 233-5800

LRGBOSTON.COM

355 Boylston St. Boston, MA 02116

Map

Photos