Luxury Real Estate Group Boston > Watertown > 6-8 Irma Avenue

LRG Boston

(617) 233-5800

355 Boylston St

Boston, Ma 02116

6-8 Irma Avenue

Watertown, MA

Property Description

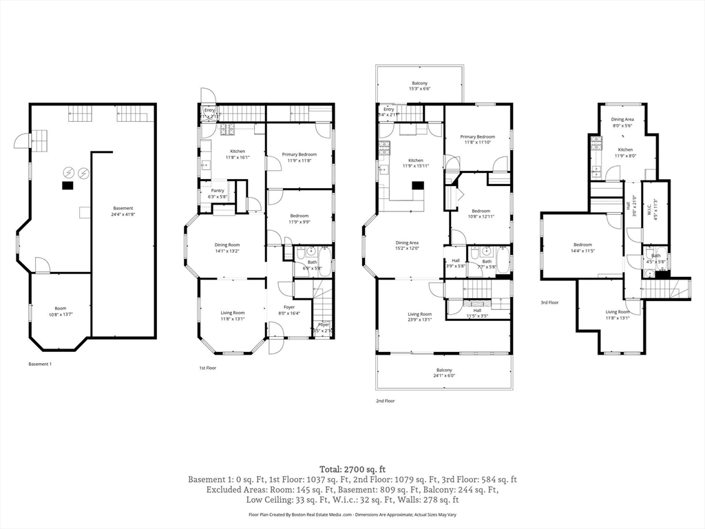
Welcome to Watertown! This well-cared for 3 level multi-family home features 14 rooms, including 5 bedrooms and 3 bathrooms, and is ideally located where Watertown meets Cambridge and Belmont. The 1st and 2nd floors each have 5 rooms, with 2 bedrooms and 1 bath. The 3rd floor offers 1 bedroom and 1 bath. The home boasts spacious rooms and high ceilings, providing abundant natural light. Location is excellent! Just minutes away from everything Watertown and the surrounding areas offer: Boston, Cambridge, Charles River, Watertown/Cambridge Greenway, major roads, shopping, dining, and public transit. It’s also just steps from some of the area’s best shops and restaurants. Easy access to public transportation makes this property a must-see and a fantastic investment opportunity! Rents are currently below market. Located in the Limited Business District! Wow!

offered at

$980,000

  • Status: New
  • Listing ID: 73481024
  • Bedrooms: 5
  • Full Baths: 3
  • Living Area: 2,957 sqft Convert
  • Lot Size: 3,484 sqft Convert
  • Acres: 0.08

Additional Details

Type: Multi-Family, 2 Family - 2 Units Up/Down

Zip Code: 02472

Levels: 5

Rooms and Dimensions

Total Units: 3

Total Floors: 5

Total Rooms: 14

Contact: LRG Boston at (617) 233-5800

LRGBOSTON.COM

355 Boylston St. Boston, MA 02116

Map

Photos