Luxury Real Estate Group Boston > Boston > 336 Saratoga St #8

LRG Boston

(617) 233-5800

355 Boylston St

Boston, Ma 02116

336 Saratoga St #8

Boston, MA

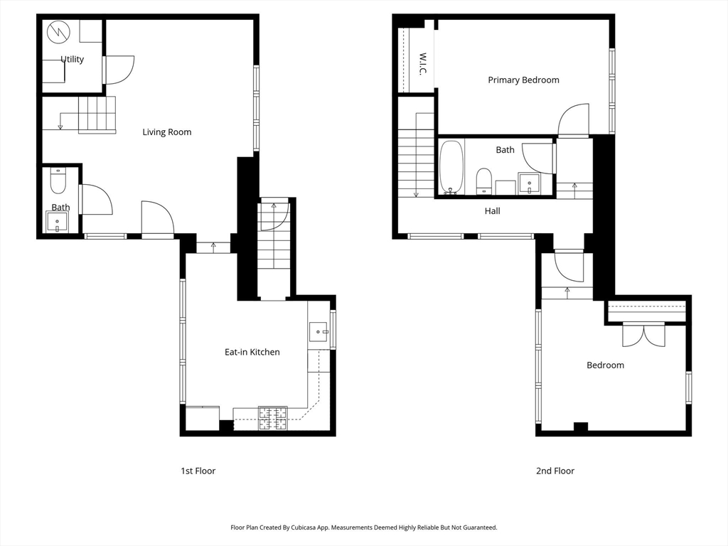
Property Description

Rare opportunity to own a unique townhouse-style condo in the beautifully restored St. John’s Church, famously featured in the Oscar Award wining film - Mystic River. This multi-level 2bd/1.5 bath duplex offers 1,268 sqft of living space (currently the largest condo on the market for under 600k!) with hardwood floors throughout, oversized windows, skylights, exposed brick, central A/C, and in-unit laundry. The first level features a spacious living room with soaring ceilings, half bath, and an eat-in kitchen with maple cabinetry, granite countertops, stainless steel appliances, and gas cooking. The second level includes two generously sized bedrooms with skylights and a full bath. This is the only unit in the building with a private direct rear entrance into the kitchen, in addition to the main entry through charming courtyard. Ideally located in Bremen St. park, Airport T-stop, YMCA, easy connections to 93 and Mass Pike and top dining including Rino’s and Angela's Restaurants.

offered at

$599,000

  • Status: New
  • Listing ID: 73481734
  • Bedrooms: 2
  • Full Baths: 1
  • Half Baths: 1
  • Living Area: 1,268 sqft Convert
  • Lot Size: 1,268 sqft Convert
  • Acres: 0.03

Additional Details

Type: Condo, Condominium

Style: Low-Rise, Duplex

Area: East Boston's Eagle Hill

Zip Code: 02128

HOA Fee: $365

Living Levels: 2

Unit Level: 1

Parking

Parking: On Street

Rooms and Dimensions

Total Units: 8

Total Floors: 2

Total Rooms: 4

Contact: LRG Boston at (617) 233-5800

LRGBOSTON.COM

355 Boylston St. Boston, MA 02116

Map

Photos