Luxury Real Estate Group Boston > Sterling > 21 Myrtle Ave

LRG Boston

(617) 233-5800

355 Boylston St

Boston, Ma 02116

21 Myrtle Ave

Sterling, MA

Property Description

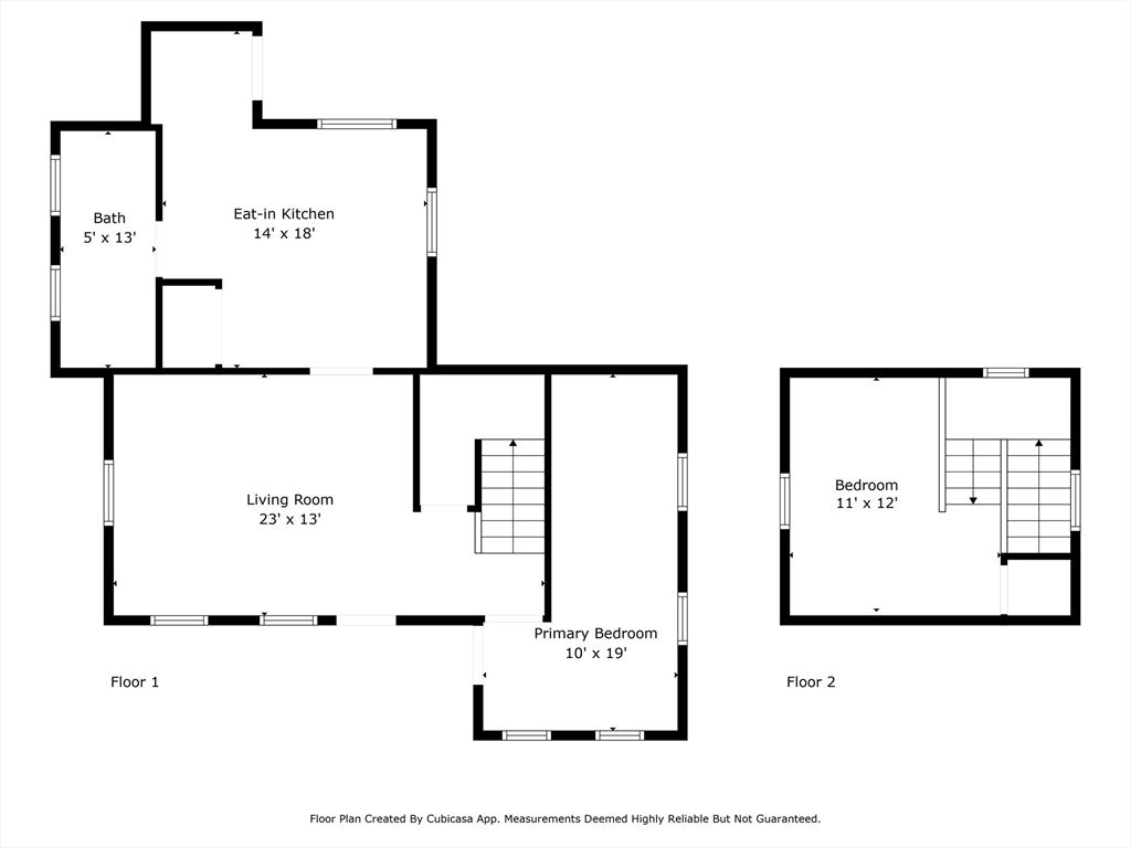
Motivated Seller! This charming 2-bed, 1-bath home offers 1,016 sq ft of updated living space, making it a perfect condo alternative for a first-time buyer or someone looking to downsize. Modern updates, the interior boasts engineered hardwood floors, a bright kitchen with butcher block counters and vaulted ceilings, and an updated bath. Recent major upgrades include new windows, electrical, and hot water tank. Community & Location Perks: Nestled in Waushacum Village Campground, residents enjoy a low HOA fee, deeded beach rights to East Lake Waushacum, and easy access to the Rail Trail. West Lake Waushacum is just down the street for fishing, canoeing, and kayaking. Commuter-friendly, the home includes a shed and off-street parking. An ideal balance of modern living and outdoor recreation awaits!

offered at

$334,900

  • Status: New
  • Listing ID: 73481954
  • Bedrooms: 2
  • Full Baths: 1
  • Living Area: 1,016 sqft Convert
  • Lot Size: 3,040 sqft Convert
  • Acres: 0.07

Additional Details

Type: Single Family, Single Family Residence

Zip Code: 01564

HOA Fee: $175

Parking

Parking: Paved Drive, Off Street

Rooms and Dimensions

Total Rooms: 4

Contact: LRG Boston at (617) 233-5800

LRGBOSTON.COM

355 Boylston St. Boston, MA 02116

Map

Photos