Luxury Real Estate Group Boston > Dedham > 72 Crane St

LRG Boston

(617) 233-5800

355 Boylston St

Boston, Ma 02116

72 Crane St

Dedham, MA

Property Description

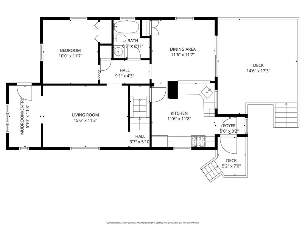
Opportunity knocks! This unique, 1940's Cape style home blends classic charm with thoughtful updates. A gracious foyer with bay-window opens into the sun-splashed living-room with distinguished tall ceilings and beautiful hardwood flooring. A tastefully renovated kitchen boasts stainless steel appliances, granite countertops, and a picture window with bar-top into the dining area, creating an open, connected feel. Step through the slider out to a newer composite deck with steps down to a patio and a private backyard oasis, beautifully landscaped with mature plantings and a shed. A modern full bathroom and 1st floor bedroom complete the 1st floor. An arched doorway leads to the 2nd level with 2 sizable bedrooms. The garage under steps into a clean basement with newer vinyl flooring, den or office/tv space with laundry and cedar closet. Commuters delight! Walk to the train and easy access to major highways. Nearby restaurants, shopping at Costco, Legacy & University Station!

offered at

$649,900

  • Status: New
  • Listing ID: 73482148
  • Bedrooms: 3
  • Full Baths: 1
  • Living Area: 1,301 sqft Convert
  • Lot Size: 6,250 sqft Convert
  • Acres: 0.14

Additional Details

Type: Single Family, Single Family Residence

Area: Ashcroft

Zip Code: 02026

Parking

Garage: 1

Garage Capacity: 3

Parking: Under, Off Street

Parking Spaces: 3

Rooms and Dimensions

Total Rooms: 6

Contact: LRG Boston at (617) 233-5800

LRGBOSTON.COM

355 Boylston St. Boston, MA 02116

Map

Photos