Luxury Real Estate Group Boston > Braintree > 300 Commercial Street #23

LRG Boston

(617) 233-5800

355 Boylston St

Boston, Ma 02116

300 Commercial Street #23

Braintree, MA

Property Description

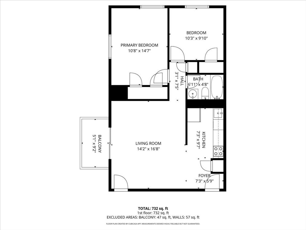
Welcome to Braintree Gardens – Building #300, Unit #23. Ideally located on the second floor with easy access to Route 93, MBTA bus lines, the Red Line Braintree T, and the Commuter Rail. Enjoy proximity to South Shore Plaza, Pond Meadow Park, Weymouth Landing, and Stop & Shop.This 2-bedroom, 1-bath unit offers a private deck off the living area and strong renovation potential for buyers ready to bring their vision. The layout provides flexibility to reimagine the space and create long-term value. Assigned parking included.The professionally managed HOA covers heat, hot water, and sewer, making ownership simple and cost-effective. Laundry is located in the building on the first floor.Unit requires significant updates and is priced accordingly. Ideal for investors, contractors, or buyers looking to customize and build equity.Opportunity awaits.

offered at

$275,000

  • Status: New
  • Listing ID: 73482168
  • Bedrooms: 2
  • Full Baths: 1
  • Living Area: 733 sqft Convert

Additional Details

Type: Condo, Condominium

Style: Low-Rise

Area: East Braintree

Zip Code: 02184

HOA Fee: $528

Living Levels: 1

Unit Level: 2

Parking

Garage Capacity: 1

Parking: Deeded

Parking Spaces: 1

Rooms and Dimensions

Total Units: 60

Total Floors: 1

Total Rooms: 4

Contact: LRG Boston at (617) 233-5800

LRGBOSTON.COM

355 Boylston St. Boston, MA 02116

Map

Photos