Luxury Real Estate Group Boston > Newton > 108 Glen Avenue

LRG Boston

(617) 233-5800

355 Boylston St

Boston, Ma 02116

108 Glen Avenue

Newton, MA

Property Description

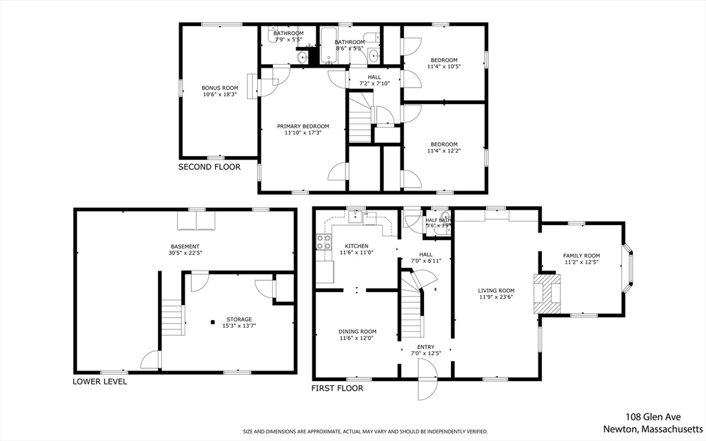
Sun-splashed, move-in condition, 8 Room, 3BR, 2.5BA Center Entrance Colonial, located in the heart of Newton Centre! This gem, tucked off the main road, is adorned by lush gardens that add elegance and natural charm to the property. First floor features a front-to-back living room, with hardwood floors, beautiful built-in bookcases and a double-sided fireplace opening to comfortable den with a large bay window. The formal dining room off the center hall flows into the updated eat-in kitchen. Off the kitchen is a hallway with a half bath, and the back door leading to the deck and grounds. Upstairs offers three bedrooms, two full baths, and a generous office off the primary suite. There is a finished room in the lower level as well as an unfinished area for storage and a workbench. Attached one-car garage. This property has been meticulously maintained, loved and improved upon throughout the years. A rare and exceptional opportunity awaits you! OFFER DEADLINE MONDAY, MARCH 9TH @ 12:00PM

offered at

$1,699,000

  • Status: New
  • Listing ID: 73482210
  • Bedrooms: 3
  • Full Baths: 2
  • Half Baths: 1
  • Living Area: 1,975 sqft Convert
  • Lot Size: 8,435 sqft Convert
  • Acres: 0.19

Additional Details

Type: Single Family, Single Family Residence

Area: Newton Center

Zip Code: 02459

Parking

Garage: 1

Garage Capacity: 2

Parking: Attached, Paved Drive, Shared Driveway, Paved

Parking Spaces: 2

Rooms and Dimensions

Total Rooms: 8

Contact: LRG Boston at (617) 233-5800

LRGBOSTON.COM

355 Boylston St. Boston, MA 02116

Map

Photos