Luxury Real Estate Group Boston > Lakeville > 1 Freetown St

LRG Boston

(617) 233-5800

355 Boylston St

Boston, Ma 02116

1 Freetown St

Lakeville, MA

Property Description

This rare find ranch with an in-law unit is perfect for multi-generational living or for rental income. The open concept living in both units provides a spacious and comfortable living space. The main unit features oak flooring, a large deck overlooking the backyard, and a master bedroom with a walk-in shower and access to the backyard deck. The in-law unit has its own farmers porch entrance and private deck, perfect for separate living quarters. Both units have beautiful granite counter tops, stainless steel appliances, and plenty of natural light. The over sized basement provides additional living space and storage for both units. The mature landscaping in the front yard adds to the charm of this property and large rare yard provides a private oasis for outdoor entertaining. With easy access to major highways and shopping, this renovated ranch is a must-see for anyone looking for a practical living space with modern amenities.

offered at

$689,900

  • Status: New
  • Listing ID: 73482997
  • Bedrooms: 5
  • Full Baths: 3
  • Living Area: 2,024 sqft Convert
  • Lot Size: 52,272 sqft Convert
  • Acres: 1.2

Additional Details

Type: Single Family, Single Family Residence

Zip Code: 02347

Parking

Garage Capacity: 5

Parking: Off Street, Paved

Parking Spaces: 5

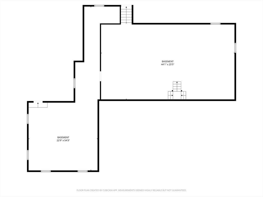
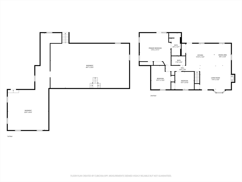
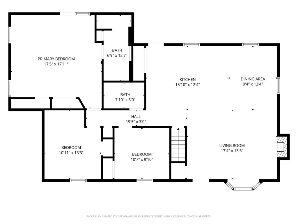
Rooms and Dimensions

Total Rooms: 7

Contact: LRG Boston at (617) 233-5800

LRGBOSTON.COM

355 Boylston St. Boston, MA 02116

Map

Photos