Luxury Real Estate Group Boston > Franklin > 3 Oak View Terrace #3

LRG Boston

(617) 233-5800

355 Boylston St

Boston, Ma 02116

3 Oak View Terrace #3

Franklin, MA

Property Description

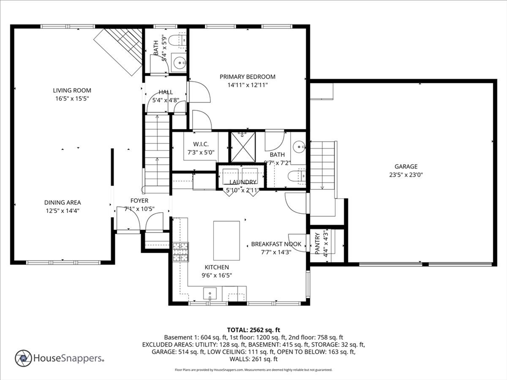
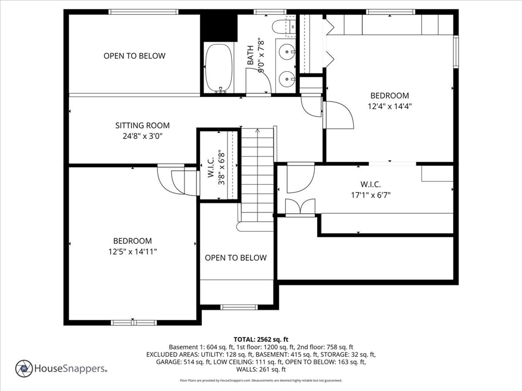
Sought-after 3–4 bedroom, 2.5 bath condo in desirable Chestnut Ridge! The formal dining and living rooms feature hardwood flooring, a dramatic vaulted ceiling, gas fireplace, and slider to a composite deck with custom awning. A first-floor bedroom with private full bath (currently used as a den) offers flexible living. The remodeled kitchen boasts custom cabinetry, center island, recessed lighting, stainless steel appliances, porcelain tile floor, and a spacious walk-in pantry. The finished walk-out lower level with built-ins and newer carpeting is ideal for a home office, media room, or additional living space. Upstairs are two bedrooms and a cozy sitting area. Original owner has meticulously maintained and updated the home; upgrade list available. Recent exterior improvements (2 yrs) include paint, roof, decks, and asphalt driveways. Pet-friendly, no age restrictions. Gas heat, a two-car attached garage, a whole-house Generac generator and inground Pool complete the package!

offered at

$725,000

  • Status: New
  • Listing ID: 73483214
  • Bedrooms: 3
  • Full Baths: 2
  • Half Baths: 1
  • Living Area: 2,489 sqft Convert

Additional Details

Type: Condo, Condominium

Style: Attached

Zip Code: 02038

HOA Fee: $679

Living Levels: 3

Unit Level: 1

Parking

Garage: 2

Garage Capacity: 6

Parking: Attached, Garage Door Opener, Storage, Workshop in Garage, Off Street, Driveway, Paved

Parking Spaces: 6

Rooms and Dimensions

Total Units: 75

Total Floors: 3

Total Rooms: 7

Contact: LRG Boston at (617) 233-5800

LRGBOSTON.COM

355 Boylston St. Boston, MA 02116

Map

Photos